3 camere, 2 bai, NOU, centrala proprie, decomandat, LA CHEIE
210.000 EUR
Apartament 3 camere cu terasă și grădină – The Class Apartments 3, Bd. PiperaApartament cu 3 camere, situat în ansamblul rezidențial The Class Apartments 3, pe Bulevardul Pipera, într-o zonă liniștită, bine conectată și în plină dezvoltare.
Clădirea este nouă, finalizată în 2023, și dispune de lift, subsol, parter și 4 etaje, oferind confort, siguranță și finisaje moderne.
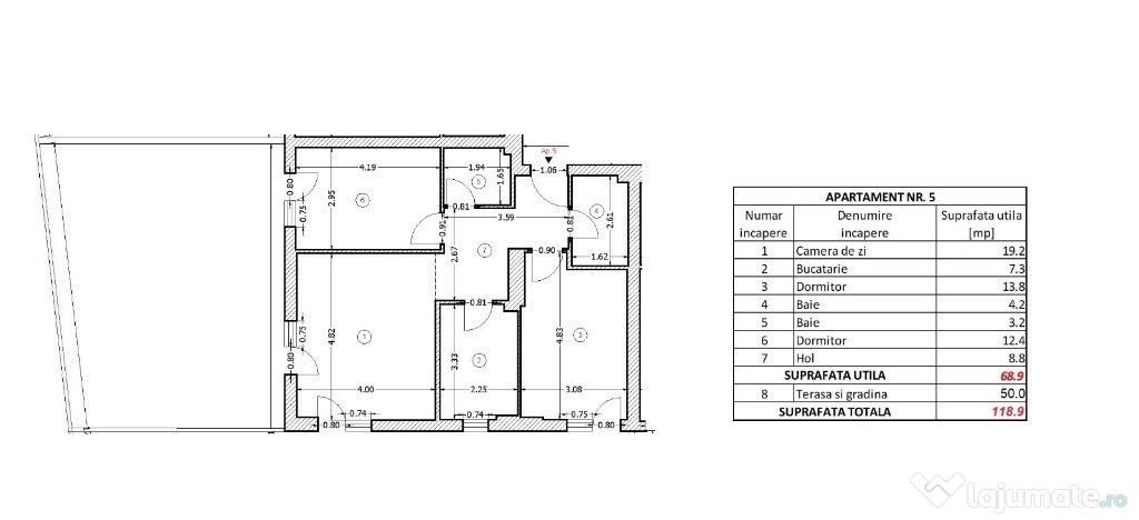
Apartamentul se află la parter și are o suprafață utilă de 68,9 mp, la care se adaugă o terasă și o grădină privată de 50 mp, rezultând o suprafață totală de 118,9 mp.
Compartimentare:
Living: 19,2 mp
Bucătărie: 7,3 mp
Dormitor 1: 13,8 mp
Dormitor 2: 12,4 mp
Baie 1: 4,2 mp
Baie 2: 3,2 mp
Hol intrare: 8,8 mp
Apartamentul se vinde complet finisat, cu toate corpurile de iluminat incluse, bucătărie complet mobilată și utilată cu electrocasnice, și beneficiază de un loc de parcare inclus în preț.
Cele două băi sunt amenajate modern, iar terasa și grădina oferă un spațiu generos, ideal pentru relaxare sau activități în aer liber.
Locuința este ideală pentru cei care își doresc un apartament nou, luminos și funcțional, într-o zonă rezidențială modernă, cu acces rapid către Pipera, Aviației și zona de business din nordul capitalei.
Confort: Lux
Tip imobil: Bloc de apartamente
Număr Băi: 2
Comision cumpărător: 0%
Publicat prin HomeZZ.ro, vezi anunțul complet aici.
Anuntul 3 camere, 2 bai, NOU, centrala proprie, decomandat, LA CHEIE este adaugat de pe LaJumate.ro.
Anunturi similare
109.900 EUR
Casa individuala, curte generoasa, centrala proprie, sat ...
Apostu Estate va ofera in exclusivitate spre vanzare casa individuala decomandata pe regim de inaltim ...
130.000 EUR
Casă 3 Camere de Vanzare | Curte | Renovată | Magazie
Uneori, ceea ce căutăm nu este doar o locuință, ci acel sentiment de „acasă” pe care îl recunoști din ...
380 EUR
Apartament 3 camere, etaj 2, 80mp +loc de parcare
Bis Imobiliare oferă spre închiriere un apartament modern cu 3 camere, situat în zona SUD, într-un bl ...
420 EUR
Apartament cu 3 camere , centrala proprie , Calea Sagului
APOSTU ESTATE va propune spre inchiriere un apartament spatios si elegant, cu 3 camere, situat intr-o ...
15 RON
Maylandia lombardoi - direct din crescatorie
Vând pești Maylandia lombardoi. Aceștia sunt o specie de pești din familia Cichlidae ce au habitatul ...
15 RON
Nimbochromis venustus - direct din crescatorie
Vand pesti Nimbochromis venustus Aceștia sunt o specie de pești din familia Cichlidae ce au habitatu ...
15 RON
Labidochromis caeruleus - direct din crescatorie
Vând pești Labidochromis caeruleus. Aceștia sunt o specie de pești din familia Cichlidae ce au habit ...
10 RON
Cichlasoma sajica - direct din crescatorie
Vând pești Ciclidul Sajica T-Bar ( Cryptoheros sajica ) . Ciclidul Sajica T-Bar ( Cryptoheros sajica ...
5 RON
Red Cherry Shrimp - Neocardinia davidi - direct din crescatorie
Vand creveti Red Cherry Shrimp Neocardinia davidi Crevetii provin din crescătoria proprie. Se liv ...
10 RON
VGuppy Koi Kohaku - direct din crescatoria proprie
Vând pești Guppy Koi Kohaku Peștii provin din crescătoria proprie. Se livrează decât în Timișoara ș ...









