3 camere, 86mp, et 1/11, parcare-Moghioros Park Residence
255.000 EUR
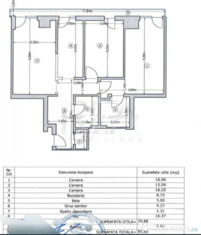
R.E.A. Imobiliare va ofera spre vanzare un apartament cu 3 camere, decomandat, situat in Drumul Taberei, pe Str. Brasov, in Moghioros Park Residence. Imobilul se afla intr.un bloc de apartamente construit in anul 2019, la etajul 1/11. Apartamentul este alcatuit din living, doua dormitoare, bucatarie, doua bai si balcon. Suprafata totala este de 86 mp, din care suprafata utila este de 80 mp.Apartamentul se vinde mobilat si utilat. Este dotat cu tot ce e nevoie pentru o mutare imediata. Regasim finisaje premium, mobilier pe comanda, electronice si electrocasnice de calitate.
Proprietarul detine doua locuri de parcare supraterane ce se pot achizitiona separat, contra valoarea acestora fiind de 10000e fiecare.
Confortul termic este realizat cu ajutorul centralei termice pe gaz ,dar si cu ajutorul aparatelor de aer conditionat.
In imediata apropiere se intalnesc puncte comerciale, bancare, farmaceutice, medicale, educationale si de divertisment.
Acces facil la mijloacele de transport in comun, 2 minute pana la statia Stb si 10 minute pana la statia de metrou Parc Drumul Taberei.
Se accepta toate modalitatiile de plata. Informatiile tehnice au caracter informativ fiind preluate direct de la proprietar.
Pentru mai multe detalii si vizionari nu ezitați sa ne contactati telefonic specificand codul P9223.
Id intern: P9223
Confort: 1
Tip imobil: Bloc de apartamente
Număr Băi: 2
Nr. locuri parcare: 2
Publicat prin HomeZZ.ro, vezi anunțul complet aici.
Anuntul 3 camere, 86mp, et 1/11, parcare-Moghioros Park Residence este adaugat de pe LaJumate.ro.
Anunturi similare
237.000 EUR
Nym House - casă individuală, design modern
Imaginează-ți dimineți liniștite, aer curat și cafea pe terasă. [Nume Proiect] îți oferă exact asta: ...
400 EUR
Caine de trufe vizsla
Vând femela de trufe din rasa vizsla maghiara în vârstă de 1 an. femela caută și aporteaza la mana t ...
84.700 EUR
Apartament 2 Camere - Complex Toscana Residence Otopeni
Apartament cu 2 camere in Complex Toscana Residence Otopeni , decomandat mobilat și utilat, la etajul ...
149.900 EUR
3 Camere Gradina -Acces rapid STB
Site interactiv www.AtenaResidence.ro -acceseaza si descopera preturi si proiect! Birou vanzari dezvo ...
141.520 EUR
2 Camere Gradina Bloc Intim Parcare Inclusa
Oferta noastra completa o gasiti pe site-ul Best Expert Imobiliare Birou vanzari dezvoltator Titan-Pa ...
127.990 EUR
Vanzare Apartament 3 camere Pallady, mobilat, utilat, loc...
Va oferim spre vanzare un apartament de 3 camere in Theodor Pallady , situat pe Drumul Gura Solcii nr ...
104.990 EUR
Nou! Ap. 3 cam., decom., et. 3, Zona Ultracentrala!
Agentia RITZ Imobiliare Slatina va propune spre vanzare, FARA comision la cumparator, un apartament c ...
400 EUR
Vitan mall zizin etaj 8 decomandat
garsonieră confort 1 situată in zona Calea Vitan, in apropierea complexului comercial Mall Vitan. Gar ...
269.000 EUR
Vila 5 camere duplex Corbeanca Centru RST RESIDENCE
Oferta Exclusiva. Avem cheile proprietatii. Vila moderna si luminoasa in centru localitatii Corbeanc ...
95.000 EUR
Apartament de vanzare 4 camere si 2 bai, zona Pacurari- Mimo
Vă propunem spre vânzare un apartament cu 4 camere și 2 băi, avand suprafata de 89 mp, decomandat, si ...








