3 camere, et 3/4, bloc 2008, 108mp-Veteranilor-Lujerului.
189.000 EUR
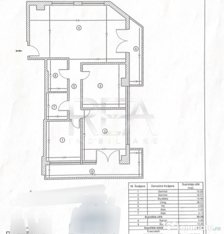
R.E.A. Imobiliare va ofera spre vanzare un apartament cu 3 camere, decomandat, situat in zona Pietei Veteranilor, pe Str. Dealul Tugulea. Imobilul se afla intr-un bloc de apartamente construit in anul 2008, fara risc seismic, la etajul 3/4. Este alcatuit din living, doua dormitoare, bucatarie, doua bai, si doua balcoane. Suprafata totala este de 108 mp, din care suprafata utila este de 92 mp. Apartamentul se vinde nemobilat si neutilat. Confortul termic este realizat cu ajutorul centralei termice pe gaz, dar si cu ajutorul aparatului de aer conditionat. In imediata apropiere se intalnesc puncte comerciale, bancare, farmaceutice, medicale, educationale si de divertisment. Acces facil la mijloacele de transport in comun, 5 minute pana la statia Stb si metrou Lujerului. Se accepta toate modalitatiile de plata. Informatiile tehnice au caracter orientativ, acestea fiind preluate de la proprietar. Pentru mai multe detalii si vizionari, ne puteti contacta telefonic , specificand codul de identificare P8668.Id intern: P8668
Confort: 1
Tip imobil: Bloc de apartamente
Număr Băi: 2
Publicat prin HomeZZ.ro, vezi anunțul complet aici.
Anuntul 3 camere, et 3/4, bloc 2008, 108mp-Veteranilor-Lujerului. este adaugat de pe LaJumate.ro.















Anunturi similare
28.500 EUR
Garsoniera confort 1 Hipodrom 30 mp Diponibila Imediat
Garsoniera confort 1 semidecomandat, Disponibila Imediat * Zona Hipodrom * Izolata termic exterior ...
585 EUR
Apartament 2 camere, premium, Avram Iancu
ID intern: 6042 REGIS Imobiliare va propune spre inchiriere un apartament modern si luminos cu 2 cam ...
89.800 EUR
TUR 3D! Apartament la parter, Centru Civic, Strada Harmanulu
Comision cumparator: 2% TVA din valoarea de vanzare. ASCENDENT IMOBILIARE va propune spre vanzare ...
89.800 EUR
TUR 3D! Apartament la parter, Centru Civic, Strada Harmanulu
Comision cumparator: 2% TVA din valoarea de vanzare. ASCENDENT IMOBILIARE va propune spre vanzare ...
700 EUR
Apartament 2 camere Premium - Novum Invest Grozavesti
Iti prezint spre inchiriere un apartament decomandat de 2 camere, situat la etajul 6, in complexul re ...
60.000 EUR
Apartament, 2 camere, Aleea Rogerius, Oradea
Va propunem spre vanzare un apartament cu 2 camere - semidecomandat, Etajul 4 din 4, tip L, mobilat s ...
138.000 EUR
Apartament cu 2 camere, superb, zona Tractoru
Blitz va prezinta un apartament 2 camere zona Tractorul - CORESI - parcare inclusa cu acces bariera - ...
174.524 EUR
Zona Linistita Acces Facil
Acest imobil face parte din dezvoltarea imobiliara HOMECLASS Residence, situat in zona Noua, Brasov. ...
154.192 EUR
Zona Linistita Acces Facil
Acest imobil face parte din dezvoltarea imobiliara HOMECLASS Residence, situat in zona Noua, Brasov. ...
145.000 EUR
| Apartament cu camere | 62 mp, zona TRIAJ |
Apartament cu 3 camere ,de vânzare în Brașov, situat în cartierul Triaj, oferind o oportunitate excel ...