3cam.dec. duplex+terasa la et.7-8/5min metrou Berceni
170.000 EUR
Direct dezvoltatorComision 0%
Birou direct care se ocupa de dosarele bancare pentru clientii cu credit.
Tel: ascuns pentru detalii, vizionari, servicii complete de consultanta notariala si bancara, etc.
Pretul afisat de 170000euro, nu include TVA-ul de 21%; daca achizitia se face pe firma(persoana juridica) TVA-ul se poate deduce.
Pretul cu tot cu TVA este de 205700euro.
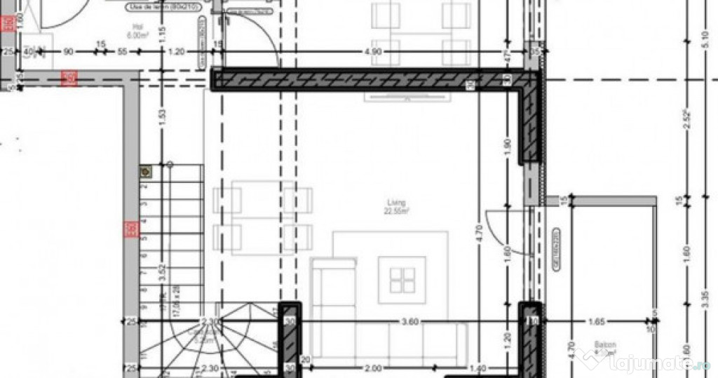
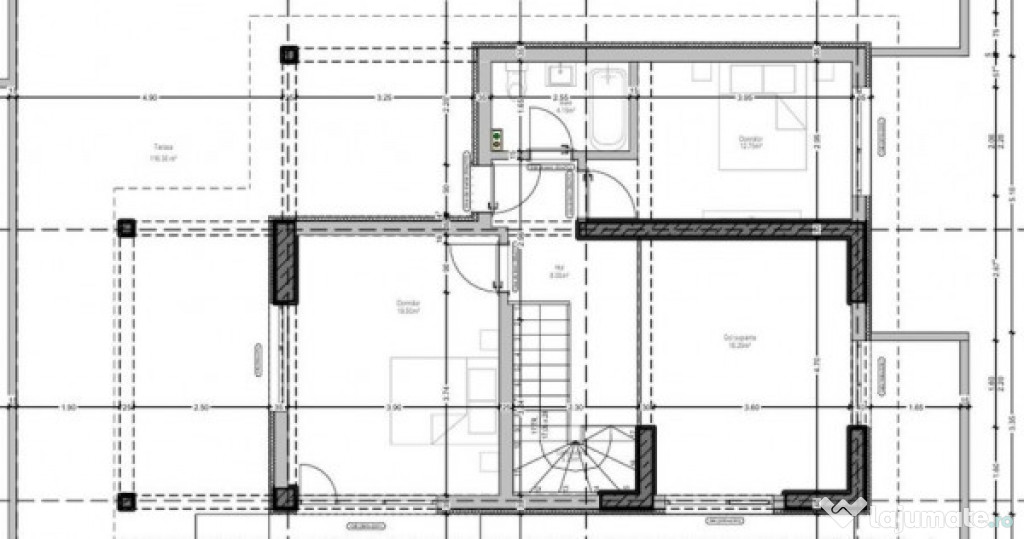
Apartamentul pe care vi-l propunem este de tip duplex dispus pe 2 etaje(et. 7 si et. 8), fiind compus din 3 camere(living si 2 dormitoare) de locuit si dependinte(2 holuri de decomandare, bucatarie, scara interioara, doua bai(cate una pe fiecare etaj, si, o terasa ce inconjoara apartamentul pe 3 din cele 4 laturi);dispune de centrala termica proprie pe gaz, incalzire in pardoseala, contorizare individuala pentru toate utilitatile, mai multe detalii la vizionare.
Apartamentul este pozitionat pe S-E avand o lumina naturala foarte buna, si, nu are vederea spre piscina exterioara astfel ca ofera mai multa liniste si intimitate, cu atat mai mult ca este situat pe ultimele 2 etaje.
Fotografiile sunt cu titlu de prezentare din acelasi bloc, dintr-un stadiu intermediar de constructie, schitele corespund apartamentului propus, iar predarea/finalizarea este planificata pentru lunile Mai-Iunie 2026, blocul fiind construit deja si intr-un stadiu avansat de finisare, iar acest apartament este ultimul disponibil din cadrul proiectului.
Ansamblu rezidential(apartamente cu 1,2,3,4 camere) situat in Popesti-Leordeni, in proximitatea statiei de metrou Berceni (la 5 minute de mers pe jos), intr-o locatie privilegiata a orasului, la doi pasi de marile cente comerciale ale sectorului 4.
Regim de inaltime DS(parcari)+P+8 etaje.
Toate apartamentele se finiseaza complet si se predau ‘’la cheie’’.
Complexul beneficiaza de parcari exterioare cat si parcari interioare, spatiu verde, loc de joaca, gradini, acces securizat, piscina.
Modalitatea de achizitie poate fi cash sau prin orice fel de credit bancar (Prima Casa sau Ipotecar standard).
Pentru a avea insa o imagine completa asupra beneficiilor pe care vi le-ar aduce o resedinta situata in complexul propus si pentru a discuta in detaliu oferta noastra, va asteptam cu placere sa ne contactati in vederea stabilirii unei vizionari la locatia proiectului.
Confort: Lux
Tip imobil: Bloc de apartamente
Număr Băi: 2
Posibilitate parcare: Da
Nr. locuri parcare: 1
Publicat prin HomeZZ.ro, vezi anunțul complet aici.
Anuntul 3cam.dec. duplex+terasa la et.7-8/5min metrou Berceni este adaugat de pe LaJumate.ro.
Anunturi similare
1.200 RON
Căței cane corso
cane corso au doua luni și două săptămâni au doua deparazitări interne părinții cu pedigree ...
135.900 EUR
Vila individuala P 1E ||4 camere 3 bai || 350mp teren || 2 m
Aceasta casa cu etaj, situata in Berceni, ofera un cadru linistit si primitor, ideal pentru o familie ...
140.000 EUR
CASA INDIVIDUALA -4 CAMERE-2 BAI-INCALZIRE IN PARDOSEALA
Va prezentam o casa noua si moderna, amplasata pe un teren de 280 mp, ce ofera confort, functionalita ...
1.500 RON
Pisicuta shirazi alba cu ochii albastri
de vanzare pisicuta alba cu ochi albastri, in varsta de 3 luni ( nascuta la 25.10.2025), rasa shirazi ...
600 EUR
Inchiriez apartament 2 camere, Metrou Eroii Revolutiei cu LOC de parca
Ofer spre inchiriere apartament cu 2 camere, confort 1, decomandat, complet mobilat și utilat 61 mp. ...
119.000 EUR
Apartament 3 camere de vanzare in Busteni 5 min partia Ka...
Agenția imobiliară Mervani vă propune spre vânzare un apartament cu 3 camere, situat într-o zonă exce ...
330.000 EUR
Casa, 3 camere, constructie 1955, teren 500mp, Rahova, 330.000euro
Proprietar, vand teren in total 500 mp. + casa demolabila in Bucuresti, sector 5, strada asfaltata, c ...
330.000 EUR
Casa, 3 camere, constructie 1955, teren 500mp, Rahova, 330.000euro
Proprietar, vand teren in total 500 mp. + casa demolabila in Bucuresti, sector 5, strada asfaltata, c ...
100.000 EUR
2 camere-Decomandat-Margeanului
R.E.A Imobiliare va propune spre vanzare un apartament cu 2 camere complet utilat si mobilat, decoman ...
125.000 EUR
Casa individuala - 4 camere - 104 mp utili - 325 mp teren
Va prezentam o casa noua si moderna, situata pe un teren de 325 mp, ce ofera confort si functionalita ...








