Apartament 2 camere 59MP | Baneasa | Mobilat si utilat | Blo
199.000 EUR
Alexandru Popovici ^ Global Home Romania ^ RealEstate ^ Imobiliare:Apartament 2 camere 59MP | Baneasa | Padurea Baneasa | Mobilat si utilat |
Descoperă un apartament modern, complet mobilat și utilat, situat într-o zonă liniștită și verde din Băneasa, pe Strada Drumul Lăpuș nr. 121, la etajul 1 dintr-un imobil nou construit în 2022.
Caracteristici principale:
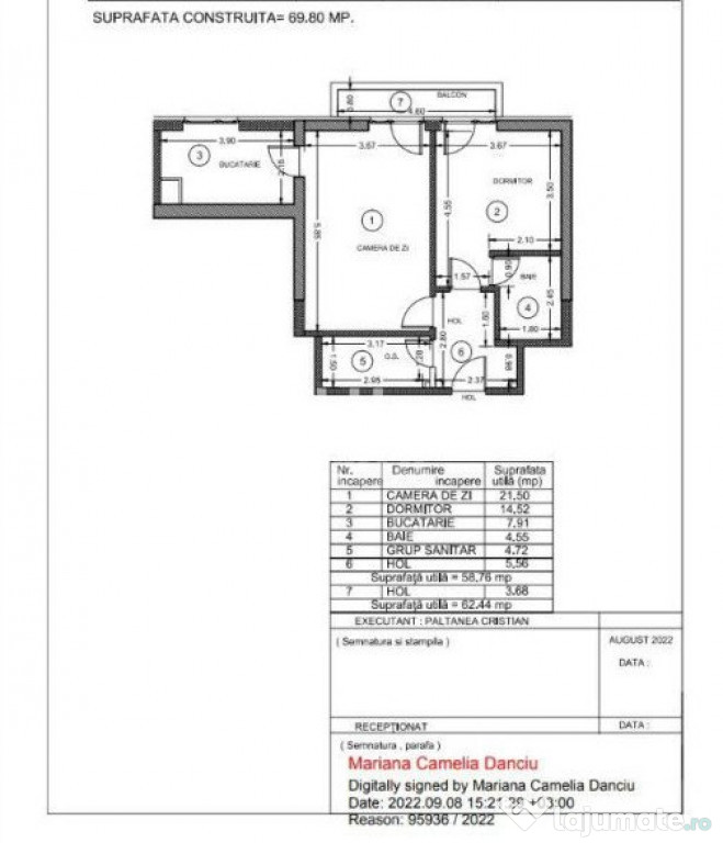
- Suprafață utilă: 59 mp
- Compartimentare: decomandată
- Etaj: 1
- Încălzire în pardoseală, cu centrală proprie
- Sistem Smart Home – control de la distanță al temperaturii, luminii și altor funcții
- Complet mobilat și utilat cu electrocasnice premium
- Finisaje de calitate superioară
Compartimentare:
- Living spațios de 21,50 mp
- Dormitor de 14,52 mp
- Bucătărie separată de 7,91 mp
- Baie + grup sanitar
- Două holuri generoase
- Balcon
Parcare: Loc de parcare disponibil contra cost: 15.000 EUR + TVA
Imobilul este amplasat într-o zonă exclusivistă, în apropierea Pădurii Băneasa, oferind acces rapid către Băneasa Shopping City, Aeroportul Otopeni, școli internaționale și clinici private – ideal pentru cei care își doresc un stil de viață modern, conectat și în mijlocul naturii.
Pentru detalii și programări vizionare, mă puteți contacta direct.___
Global Home Romania, este o firmă în schimbare de jocuri pe piață imobiliară din România ce se afla intr-o expansiune rapidă. Modelul personalizat avand la baza tehnologia digitala, inteligenta artificala și interacțiune umană alături de colaboratorii firmei, inspiră constant încredere. Având o abordare de marketing profesională și îndrăzneță a ridicat atenția asupra modului în care oamenii se gândesc la imobiliare in Romania.
Global Home Romania, companie imobiliara infiintata in 2020 ce continuă să se dezvolte cu succes în domeniu, reușind să atraga constant parteneri și colaboratori de încredere. Cu sediul în București, Global Home Romania, a apărut ca o firmă imobiliară de încredere ce își propune constant să livreze servicii de calitate.
Misiunea Global Home Romania în piața imobiliară, este aceea de a stabili un raport solid bazat pe încredere și profesionalism între reprezentantii nostri imobiliari bine informati impreuna cu toti clientii si colaboratorii companiei.
Id intern: P16381
Confort: 1
Tip imobil: Bloc de apartamente
Număr Băi: 2
Comision cumpărător: 2%
Publicat prin HomeZZ.ro, vezi anunțul complet aici.
Anuntul Apartament 2 camere 59MP | Baneasa | Mobilat si utilat | Blo este adaugat de pe LaJumate.ro.
Anunturi similare
298 RON
Motoras stergator hayon Volkswagen Passat B7 Break 2011
Motoras stergator hayon Volkswagen Passat B7 Break 2011. Cod(uri): 3C9955711A. Piesele comercializat ...
298 RON
Motoras stergator hayon Ford Fiesta 2016
Motoras stergator hayon Ford Fiesta 2016. Cod(uri): 8A6TA17K441AA. Piesele comercializate sunt origi ...
357 RON
Ceasuri Bord UK Renault Megane 3 Break 2012
Ceasuri Bord UK Renault Megane 3 Break 2012. Cod(uri): 248108615R. Piesele comercializate sunt origi ...
298 RON
Motoras stergator hayon Mercedes E Class W212 2012
Motoras stergator hayon Mercedes E Class W212 2012. Cod(uri): A21200644002. Piesele comercializate s ...
190 RON
Motoras stergator hayon Skoda Fabia 2 2012
Motoras stergator hayon Skoda Fabia 2 2012. Cod(uri): 5J9955711A. Piesele comercializate sunt origin ...
298 RON
Airbag cortina stanga Renault Megane 3 Break 2012
Airbag cortina stanga Renault Megane 3 Break 2012. Cod(uri): 985P15305R. Piesele comercializate sunt ...
298 RON
Motoras stergator hayon Nissan Juke 2012
Motoras stergator hayon Nissan Juke 2012. Cod(uri): 287101KA0A. Piesele comercializate sunt original ...
2.380 RON
Cutie de viteze 6 trepte Volkswagen Golf 7 1.4 Benzina 2015
Cutie de viteze 6 trepte Volkswagen Golf 7 1.4 Benzina 2015. Cod(uri): RGN. Piesele comercializate su ...
178 RON
Airbag pasager Renault Megane 3 2012
Airbag pasager Renault Megane 3 2012. Cod(uri): 985155802R. Piesele comercializate sunt originale, pr ...
892 RON
Cutie de viteze in 5 trepte Opel Corsa D 1.2 Benzina 2009
Cutie de viteze in 5 trepte Opel Corsa D 1.2 Benzina 2009. Cod(uri): SF1389408183038, 55565177, 9319 ...









