Ap. decomandat 3 camere, Suprafata utila 73 mp, Bdul. Na?...
265.000 EUR
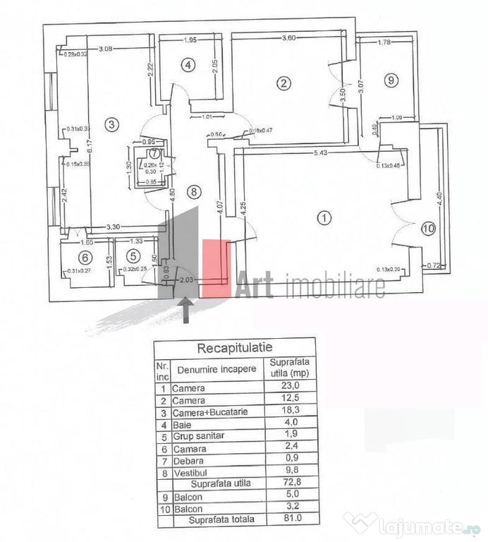
Dacă vă plac spațiile generoase pe care le puteți amenaja după propria dumneavoastră dorință, acest apartament va fi cu siguranță pe placul dvs.Situat în centrul capitalei, în imediata apropiere a Palatului Parlamentului, pe Bulevardul Națiunile Unite, la etajul 2/7, apartamentul dispune de:
- Living în suprafață de 23 mp
- Bucătărie deschisă + cameră în suprafață de 18,3 mp
- Cameră în suprafață de 12,5 mp
- 2 grupuri sanitare (baie 4 mp + grup sanitar 1,9 mp)
- 2 balcoane închise
Apartamentul este semi-mobilat cu 2 biblioteci și 2 birouri având mobilă de colecție din lemn masiv și dispune de două spații de depozitare ce se pot amenaja după preferințele dvs.
Comisionul agenției este de 2%+TVA.
Vă așteptăm la vizionare!
Confort: 1
Tip imobil: Bloc de apartamente
Număr Băi: 2
Posibilitate parcare: Nu
Publicat prin HomeZZ.ro, vezi anunțul complet aici.
Anuntul Ap. decomandat 3 camere, Suprafata utila 73 mp, Bdul. Na?... este adaugat de pe LaJumate.ro.
Anunturi similare
760 EUR
Apartament 4, camere zona Vest, Ploiesti
Inchiriere apartament de lux, 4 camere, confort 1A decomandat, situat la etajul 3 al unui imobil cu 4 ...
270.000 EUR
Casa 5 camere , renovata 2020 cu garaj , Ploiesti , central
Vanzare casa 5 camere in Ploiesti, zona centrala , cu garaj interior , beci , magazie si terasa propr ...
950 EUR
Apartament 2 Camere Lux Prima - ONE Cotroceni
Iti propun spre inchiriere un apartament de lux cu 2 camere, situat in faza a doua a complexului One ...
99.990 EUR
2 camere, et. 1/4-Drumul Taberei-Orizont-Afi Cotroceni
R.E.A. Imobiliare va ofera spre vanzare un apartament cu 2 camere, semidecomandat, situat in Drumul T ...
180 RON
Vând canari timbrări Espanyol
de dat masculi canari de cantec timbrado tineret 2025 și unu din 2024 vioi sănătoși cu un cântec deos ...
110.000 EUR
Apartament 3 camere Diham, Bd Basarabia, Bd Nicolae Grigo...
Ramiro Imob vă propune spre vânzare un apartament cu 3 camere zona Diham Situat la etajul 1 din 4 Po ...
1.500 EUR
Inchiriere apartament 2 camere Nord!
Într-o zonă liniștită din nordul orașului, acest apartament cu 2 camere își așteaptă noii chiriași. L ...
140.000 EUR
FILM! Casa primitoare in centrul orasului Targu Secuiesc
Comision cumparator 0% ASCENDENT IMOBILIARE COVASNA este onorata sa va propuna spre vanzare in REPR ...
245.000 EUR
Apartament 2 camere | 59 mp | Aviatiei Park || Metrou Aurel
Global Home Romania | Real Estate Agency | Imobiliare Apartament 2 camere | 59 MP | Complex Aviatiei ...
114.500 EUR
Apartament 3 camere, 70 mp | Tătărași | Etaj 2/4 | Bloc f
Vă propun spre vânzare un apartament cu 3 camere semidecomandat, situat în Tătărași, într-un bloc făr ...



