Apartament 2 camere, Finisat, balcon, gazaj, Zona Somesului
91.852 EUR
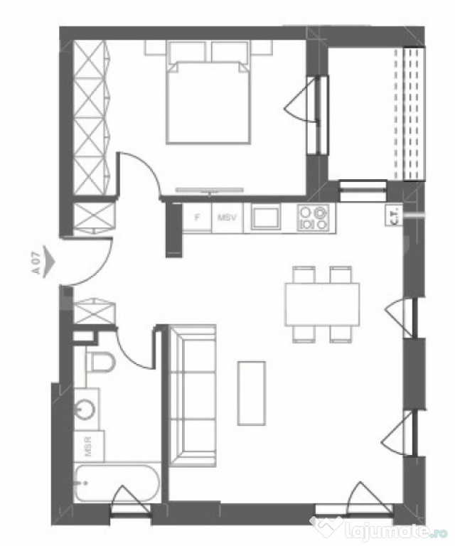
Blitz va propune spre vanzare un apartament intr-o zona nou dezvoltata, in zona Somesului din Floresti.Compartimentarea modern gandita este urmatoarea : hol , living + bucatarie open space, 1 dormitor, baie cu geam si balcon.
Apartamentul este pozitionat la parter, intr-un bloc cu regim e inaltime D+P+4E+ER.
Se preda la stadiul de finisat, in felul urmator:
– peretii vor fi tencuiti, gletuiti si vopsiti cu lavabila alba
– pardoselile vor fi predate cu sapa semiuscata executata, peste care se va aplica gresie sau parchet dupa caz
– geamuri termopan, cu sticla tripan, cu usi de acces pe balcon.
– usa de intrare si usile din interiorul apartamentelor vor fi montate
– instalatiile interioare vor fi trase pe pozitii (electrice, sanitare, gaz)
– baile vor fi echipate cu instalatii si obiecte sanitare, respectiv vas WC, lavoar si bateriile aferente.
– instalatiile electrice executate ( panou, doze si intrerupatoare)
– sistem de incalzire in pardoseala (centrala termica in condensare)
– terase cu hidroizolatii si balustrazi unde este cazul.
Contracost se poate achizitiona o parcare subterana la pretul de 9520 euro, iar la pretul de 5600 euro o parcare exterioara.
Pentru pretul afisat, avansul minim perceput este de 30%.
Drumul de acces este asfaltat.
Zona este in plina dezvoltare, cu magazine, farmacii, acces facil la E60 si statii de BUS, statii incarcare masini electrice, etc.
Ansamblul va fi finalizat in perioada iunie - iulie 2026.
!!! PRETURILE INCLUD TVA !!!
Pentru mai multe informatii si stabilirea unei vizionari va stam la dispozitie.
Cod ofertă / ID BLITZ: P155409
Id intern: P155409
Confort: 1
Tip imobil: Bloc de apartamente
Număr Băi: 1
Nr. locuri parcare: 1
Publicat prin HomeZZ.ro, vezi anunțul complet aici.
Anuntul Apartament 2 camere, Finisat, balcon, gazaj, Zona Somesului este adaugat de pe LaJumate.ro.





Anunturi similare
88.900 EUR
Apartament Premium cu 2 camere cu iesire spre calea Rahova
Oferta comision 0. Oferta Exclusiva. Avem cheile proprietatii. Galaxyimob va ofera spre vanzare un a ...
88.900 EUR
Apartament Premium cu 2 camere cu iesire spre calea Rahova
Oferta comision 0. Oferta Exclusiva. Avem cheile proprietatii. Galaxyimob va ofera spre vanzare un a ...
269.900 EUR
DUMBRAVITA - 3 CAM - 2 BAI - 2 LOCURI PARCARE - LUX - TERASA
Agentia Imobiliara PRIMUM - Timisoara are placerea de a va prezenta spre vanzare apartament cu 3 came ...
550 EUR
Închiriere apartament în Craiova
NOU! Prima Închiriere Apartament Premium, Complet Mobilat și Utilat, Ultracentral Craiova Preț: 700 ( ...
186.000 EUR
Apartament ultracentral cu 3 camere, zona Piata Ferdinand
D`Art imob va ofera spre vanzare un apartament ultracentral cu 3 camere, situat pe strada Ady Endre, ...
85.000 EUR
Apartament 2 camere, 40 mp, modern, zona Teilor
Blitz vinde apartament cu 2 camere, situat in Floresti, in zona Teilor. In proximitatea zonei exista ...
62.000 EUR
Apartament 2 camere, Micro 17
Blitz vă propune spre vânzare un apartament cu 2 camere situat în cartierul Micro 17,la etajul 4/4 al ...
48.500 EUR
Apartamenr 2 camere
Apartament 2 camere Etaj4/4(nu are probleme cu plafonul a fost renovat complet) Geamuri termopan Balc ...
128.900 EUR
FABRIC - 3 CAM - DECOMANDAT - 2 BAI - BOXA - ETJ.INTERMEDIAR
Agentia Imobiliara PRIMUM - Timisoara are placerea de a va prezenta spre vanzare apartament cu 3 came ...
550 EUR
Inchiriez apartament 2 camere
Apartament de 2 camere decomandate, doar mobila de bucatarie ( totul nou nefolosit), gaze, aer condit ...