Apartament cu o camera, decomandat, balcon deschis , etaj...
79.000 EUR
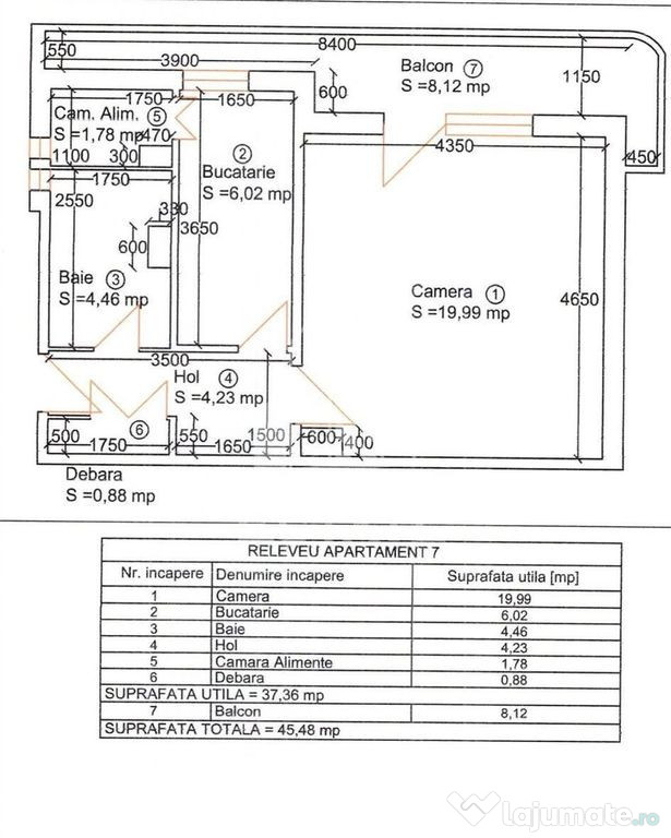
APOSTU ESTATE va propune spre vanzare un apartament cu o camera, situat la etajul 1/4 intr-un bloc neanvelopat, ideal pentru cei care doresc sa il personalizeze dupa propriul gust.Locuinta are o suprafata utila de 36 mp si dispune de un balcon deschis, baie cu geam pentru aerisire si cada, precum si o bucatarie spatioasa cu loc de luat masa si debara generoasa.
Podeaua este din beton acoperit cu linoleum, iar incalzirea se face prin termoficare.
Apartamentul necesita renovare completa, oferind posibilitatea viitorului proprietar de a-l transforma intr-un spatiu modern si confortabil.
Proprietarul este deschis la oferte.
Vecinatati:
• Complexul Studentesc
• Restaurante si cafenele
• Mijloace de transport in comun
O alegere excelenta pentru investitie sau locuinta personala, situata intr-o zona linistita, cu acces facil catre punctele de interes ale orasului.
CP2793062
Confort: 1
Tip imobil: Bloc de apartamente
Număr Băi: 1
Posibilitate parcare: Nu
Publicat prin HomeZZ.ro, vezi anunțul complet aici.
Anuntul Apartament cu o camera, decomandat, balcon deschis , etaj... este adaugat de pe LaJumate.ro.
Anunturi similare
600 RON
Albastru de Rusia
Albastru de Rusia în vârstă de 8 săptămâni deparzitat intern și extern face la litieră cu nisip mănân ...
600 EUR
Casa de inchiriat
Casa cu doua camere decomandate, baie, bucatarie, doua holuri, proaspat renovata, incalzire cu centra ...
800 RON
Pui mascul ciobanesc german
Vand pui mascul ciobanesc german, foarte inteligent, activ ,jucaus , sanatos. Iti va umple viata de e ...
Gratuit
Donez / Ofer gratuit un peste celui care are acvariu
Donez / Ofer gratuit un peste celui care are acvariu Sper sa se bucure cineva de el! ...
390 EUR
Vatra Luminoasa - Mihai Bravu, 2 camere, proximitate metrou
Particular - Apartament situat pe str Vatra Luminoasa, la intersectia cu Bd. Mihai Bravu. Scara bloc ...
Gratuit
Metis ciobanesc pui, gratuit
Sunt Onyx, un baietel de talie medie si am 2 luni si jumatate. Sunt sanatos, vesel si jucaus. Cine ma ...
Căutăm Curieri pentru Glovo si Bolt Food – Program Flexibil & Câștigur
Te pasionează libertatea de a lucra când vrei și cât vrei? Îți dorești un venit motivant și un mediu ...
350 EUR
Apartament 3 camere de închiriat
Inchiriez apartament 3 camere, pentru mai multe detalii sunați la nr. 0767403508 ...
700 RON
Norvegian de pădure
Norvegian de pădure fetițe și baetei au șapte săptămâni sunt deparazitați educați la litiera mănâncă ...
4.050 RON
Angajare curier am licuricius srl 50 posturi
ANGAJARE CURIER AM LICURICIUS SRL 50 POSTURI COD COR 962101 ...








