Duplex 3 camere The Suburb Buftea
750 EUR
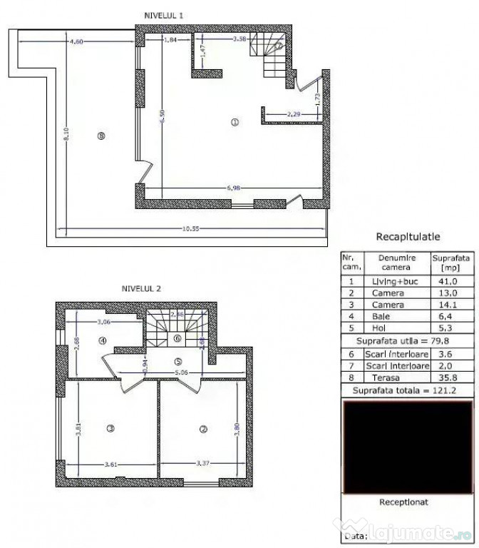
Duplexul este compus la primul palier, dintr-un living spatios cu bucatarie deschisa, o baie si o terasa generoasa.La palierul superior se afla doua dormitoare si o baie ce le deserveste.Loc de parcare inclus in pret.
Mai multe detalii gasiti pe site-ul www.thesuburb.ro .
https://thesuburb.comnord.ro/apartamente/duplex-3-camere-2/
The Suburb se află în orașul Buftea, o oază de liniște unde ai toate facilitățile de care ai nevoie pentru un trai confortabil. Amplasat într-o zonă înconjurată de păduri și lacuri, ansamblul rezidențial The Suburb este locul în care utilitățile orașului se îmbină cu liniștea naturii.
Ansamblul The Suburb este format din 19 corpuri de clădire P+3E+4E duplex cu peste 490 de apartamente de 2,3 și 4 camere sau tip studio. Prețurile avantajoase, finisajele de calitate și eficiența energetică sunt doar câteva motive pentru care să te alături comunității The Suburb.
O multitudine de beneficii te așteaptă în cea mai mare comunitate rezidențială din Buftea:
Ești suficient de aproape de oraș, dar te bucuri pe deplin de liniștea suburbană. Ajungi în București în doar 15 minute folosind trenul care te duce direct în Gara de Nord.
În apropierea ansamblului rezidențial ai mai multe zone de relaxare în aer liber, fiind o zonă ideală pentru tinerele familii. Palatul și capela Știrbei, turnul de apă, pădurea și lacul Buftea sunt doar câteva dintre atracțiile locale.
The Suburb își propune să construiască cea mai mare comunitate rezidențială din Buftea. Uită de agitația zilnică a Bucureștiului și alătură-te unei comunități în care liniștea ta este pe primul loc.
Costurile de achiziție ale apartamentelor The Suburb le fac accesibile familiilor la început de drum, persoanelor pe cont propriu și tuturor celor care își doresc un spațiul al lor, pe care să-l numească acasă.
Dacă ai copii, înțelegi importanța unei grădinițe bune în apropierea casei. Micuțul tău se va dezvolta, va învăța lucruri noi și va socializa într-o grădiniță modernă și cu staff profesionist.
Liniștea zonei în care vei locui este întregită de toate facilitățile de care ai nevoie pentru un trai confortabil: magazine, supermarketuri, piață, sală de fitness, creșe, grădinițe, școli, spitale, policlinici, zone de relaxare, instituții financiar bancare și mijloace de transport în comun.
Toate materialele folosite atât la structura construcției, cât și la finisajele interioare și exterioare au fost alese cu grijă pentru siguranța și confortul tău. Structură de rezistența din beton armat, compartimentările cu pereții groși, izolațiile de ultimă generație și finisajele de la furnizori de top sunt doar câteva motive pentru care un apartament The Suburb este alegerea bună pe termen lung.
Apartamentele sunt complet finisate, astfel că singura ta grijă rămâne alegerea mobilierului și al decorului preferat. Fiecare apartament dispune de pardoseli (parchet și gresie), tâmplărie interioară completă, izolație și toate obiectele sanitare de bază deja montate. Instalațiile termice și de ventilație asigură o temperatură optimă și o calitate superioară a aerului din încăperi, iar instalațiile electrice sunt concepute pentru 100% siguranță pentru toți membrii familiei.
Alătură-te comunității The Suburb și descoperă o zonă rezidențială concepută pentru confortul și liniștea ta și a familiei tale!
VAUNT ID: 100741
Confort: 3
Tip imobil: Bloc de apartamente
Număr Băi: 2
Publicat prin HomeZZ.ro, vezi anunțul complet aici.
Anuntul Duplex 3 camere The Suburb Buftea este adaugat de pe LaJumate.ro.


















Anunturi similare
255.000 EUR
Casa - P 1 M - Deva
BENEFICII PENTRU CLIENTII ACESTEI OFERTE: 1. Beneficii oferite de zona: - Zona centrala Deva. - Drum ...
135.000 EUR
Apartament cu 2 camere finisat cu designer in cartierul Mana
Apartament 2 camere de vanzare, semidecomandat, 40 mp, zona Manastur, Cluj-Napoca. TABOO Imobiliare ...
114.800 EUR
Imobil nou, structura durabila,optimizare a functionalitatii
Comision cumparator: 2% tva, din valoarea de tranzactionare ASCENDENT IMOBILIARE este onorata sa v ...
1.199 EUR
Apartament 3 camere Iancu Nicoale I Pipera
VG Real Estate vă propune spre închiriere un apartament modern cu 3 camere, intr-un bloc tip boutique ...
320.000 EUR
Apartament cu 3 camere 105 mp decomandat in cartierul Plopil
Apartament 3 camere de vanzare, decomandat, 105 mp, zona Plopilor, Cluj-Napoca. &nb ...
46.000 EUR
Apartament 2 camere , micro 9 Targoviste .
Oferta Exclusiva. Avem cheile proprietatii. Glx48100225 Mobilat si utilat - Vanzare apartament 2 cam ...
82.900 EUR
APARTAMENT 2 CAMERE SOSEAUA SALAJ
Cartier Dream Residence Apartament 2 CAMERE 47 MP Etaj 4/6 Stație STB 117,227 Mobilat și utilat (maș ...
250.000 EUR
Vila individuala, noua, 4 camere, Miroslava, Comision 0
Agentia Evo Imobiliare va propune spre vanzare o proprietate eleganta si spatioasa, situata intr-o lo ...
260 EUR
Garsoniera mobilata, cu centrala, la parter, curata, pe George Bacovia
RAVIROM IMOBILIARE inchiriaza in EXCLUSIVITATE o garsoniera confort 1, mobilata si utilata, la parter ...
500 EUR
Apartament 3 camere, prima inchiriere, curte privata, Ghi...
APOSTU ESTATE vă propune spre închiriere un apartament spațios și elegant, cu 3 camere, situat într-o ...