Casa de la râu - o poveste la apus
Cum ar fi daca fiecare dimineata ar incepe ca in concediu, savurandu-ti cafeaua pe terasa de 40mp? Cum ar arata serile, venind acasa dupa o zi de munca, asezandu-te in fotoliul preferat din living cu un pahar de vin, privind spre apus si auzind raul curgand? Casa de la râu îți oferă perspectiva de a trăi asta, intr-un loc pe care îl poți numi, cu ușurință, ACASĂ.Departe de tumultul citadin, această proprietate oferă tot confortul necesar unui trai liniștit al unei familii și reprezintă un loc în care copii pot crește în libertatea unui spațiu natural. Avand curtea impecabil amenajata este astfel gandita, incat atat copiii cat si adultii sa poata beneficia de acest cadru natural.
Situată în comuna Clinceni, pe malul râului Sabar, la doar 15 km de București, această casă este amplasată într-un condominium care s-a dezvoltat în ultimii 3 ani.Imobilul se remarcă atât prin amplasarea ei (intimitatea dată de liniștea zonei și de mediul curat și civilizat) dar și prin aspectul elegant al construcției și atenția acordată detaliilor în amenajarea spațiului intern și extern al acestuia.
Confortul este dat nu numai de spațiul intern locativ generos, cu circulatii aerisite si inteligente, caracterizat prin suprafețe vitrate generoase și înălțimea camerelor, dar și de cel exterior – foișorul utilat (gratar, chiuveta, masa si scaune), curtea generoasă, grădina frumos amenajată în care întâlnești diferite specii de conifere, arbuști ornamentali, hortensii, trandafiri, magnolii, lavandă, 2 pomi fructiferi, 1 falnic stejar, câteva specii de brazi, arțar japonez.
Toate acestea sporesc farmecul acestui loc și adaugă un plus de valoare în posibilitatea de recreere în aerul curat al naturii.
Locuinta dispune de toate utilitățile necesare unui nivel de confort sporit beneficiind de curent, gaz, apă, canalizare , centrală termică, sistem de supraveghere interior și exterior, sistem de alarmă, sistem de irigații grădină, generator, telecomandă poartă alarmă auto, precum si un loc de parcare acoperit si mai multe locuri de parcare in fata proprietatii pentru cei veniti in vizita.
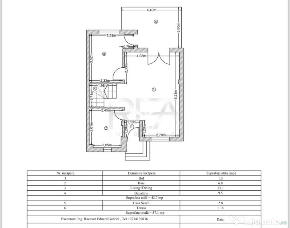
În zona de parter care se întinde pe o suprafață de 157 mp, se regasesc finisaje de calitate care îmbracă subtile note de rafinament. Zonele vitrate, pereții acoperiți cu vopsea decorativă, șemineul funcțional pe lemne, piatra naturală, toate aceste elemente împletite cu frumusețea și căldura lemnului din mobilier, întregesc un tablou care îmbie spre pace și armonie. Zona de zi se continua cu o terasa exterioara
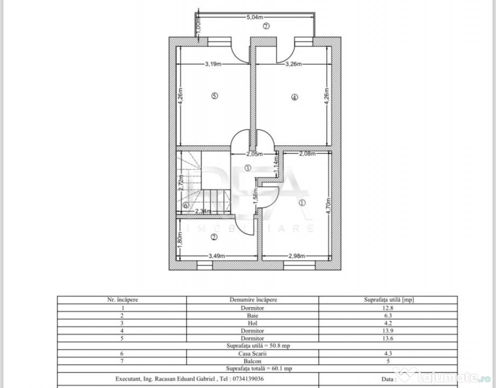
La etajul 1, compartimentarea a fost realizată cu scopul de a oferi intimitatea și utilitatea necesară oricărei familii, cele 3 dormitoare existente beneficiază de baie proprie ( cu cadă) și de propria terasă.
Mansarda, al cărui spațiu este generos, dispune de de 3 camere prevăzute cu 6 ferestre Velux, 1 dormitor cu baie proprie, un spațiu de depozitare, un șemineu pe lemne încastrat într-un perete de piatră naturală, grinzi din lemn natural, la care se adaugă un spațiu de zi deschis care poate fi amenajat ca spațiu de lucru, zonă de birou sau loc de joacă pentru copii. De mentionat este faptul că acest spatiu poate suporta o nouă recompartimentare.
PROPRIETATEA SE POATE VINDE SI COMPLET MOBILATA LA PRETUL DE 460.000 euro.
Principalele caracteristici ale proprietății:
- anul construcției – 2014 ( finalizată)
- suprafață teren – 700 mp
- suprafață construită desfășurată – 453 mp
- suprafață constuită la sol – 157 mp
- regim de înălțime – P+1E+M
- sistem constructiv – structură din beton armat în cadre și grinzi pe radier general, zidărie exterioară și compartimentări din cărămidă tip porotherm, învelitoare tablă ondulată.
- compartimentări :
- parter – living, dining, bucătărie, baie, cameră de serviciu;
- etaj – 3 dormitoare, fiecare dormitor are propria baie și terasă:
- mansardă – spațiu de zi, dormitor cu baie și dressing, spațiu de birou, spațiu de recreere:
Utilități generale:
- curent, apă, gaze, canalizare, telefonie;
- sistem încălzire: centrală proprie;
- climatizare : aer condiționat – 3 unități Daikin;
- acces internet : fibră optică wireless;
Dotări :
- foișor (cu o suprafață generoasă);
- grădină amenajată;
- mobilier grădină;
- spații de depozitare externe;
- contorizare;
- stație de dedurizare și purificare a apei;
- generator de curent automat 10 KVA, pornire automată;
- sistem de irigații;
- sistem de supraveghere și monitorizare (internă și externă);
- carport;
- telecomandă poartă auto;
- video interfon;
- 2 șeminee funcționale alimentate cu lemne ( parter și mansarda)
- scară interioară;
- bucătărie complet utilată;
- electrocasnice complete;
In cazul in care se doreste ca imobilul sa fie mobilat si utilat, pretul este de 460.000 €.
Finisaje:
- ușă intrare metalică;
- ferestre cu geam termopan PVC (cu inserții);
- scară interioară din lemn;
- podele: parchet, gresie;
- uși interior din lemn;
Detalii zonă :
- amenajare străzi asfaltate;
- iluminat stradal;
- mijloace de transport in comun la 2 minute (acces în oraș);
Număr niveluri imobil: 3
Număr Băi: mai mult de 3
Comision cumpărător: 0%
Posibilitate parcare: Da
Nr. locuri parcare: 2
Curent
Apă
Canalizare
Gaz
Încălzire
Climă
Sistem irigaţie
Publicat prin HomeZZ.ro, vezi anunțul complet aici.
Anuntul Casa de la râu - o poveste la apus este adaugat de pe LaJumate.ro.
Anunturi similare
1.800 RON
Direct proprietar - garsoniera Weiner Palada, din 1 martie
Oferim garsoniera noastră spre închiriere, de preferat pentru o persoană singură sau un cuplu căsător ...
39.000 EUR
Apartament 1 camera 39mp, confort 1 decomandat, Calarasi 4,
Apartament 1 camera 39mp, confort 1 decomandat, Calarasi 4, mobilat. Zugravit recent. Dotat cu centra ...
78.000 EUR
Apartament 2 camere, 55.20 mp, zona Steaua
Blitz vă propune spre vânzare un apartament cu 2 camere, decomandat, cu o suprafață utilă de 55,2 mp, ...
750 EUR
2 Camere, Piata Unirii, Pet Friendly, 1 min Metrou
Comision agentie: 50% din valoarea unei chirii. Apartament spatios cu 2 camere, complet mobilat si ut ...
450 EUR
Partament 2 camere pt inchiriat
Inchiriez apartament cu 2 camere la bloc Privilege. Apartamentul are 60 mp si este complet mobilat si ...
237.499 EUR
Vila 5cam,parcare,curte,mob-util,mutare imed/15min metrou...
Proprietar, vand(cash/credit) prin agentie(tel: 0720002332 - pentru detalii si vizionari, comision ...
86.000 EUR
Apartament 3 camere decomandat, reabilitat
Apartament 3 camere decomandat – 1 Decembrie, Ilfov | Parcare | Centrală | Mobilat complet Vânzare d ...
350 EUR
Garsonieră de închiriat (Militari Residence )
Direct proprietar ,închiriez garsonieră,mobilată și utilată complet ,str.Tineretului nr.35bis (Milita ...
140.000 EUR
Apartament 3 camere decomandat zona Poarta 6
Agentia Acord Imobiliar , va propune spre vanzare un apartament cu 3 camere , 2 balcoane , situat la ...
111.999 EUR
3 camere Titan decomandat, an 1974, renovat
R.E.A. Imobiliare vă oferă spre vânzare un apartament cu 3 camere decomandat în zona Titan, situat în ...





