Casa eleganta D P E, teren 178 mp, pretabila - clinica, locu
450.000 EUR
BENEFICII PENTRU CLIENTII ACESTEI OFERTE:1. Beneficii oferite de zona:
- zona centrala
- 2 minute Piata Sarari
- 2 minute Spitalul Filantropia
- 3 minute Facultatea de Automatica
2. Beneficii tehnice ale ofertei:
- casa eleganta D P E, pretabila - clinica, birouri, locuinta
- suprafata totala desfasurata 174.30 mp
- demisol cu o suprafata utila de 40.12 mp , compus din pivnita
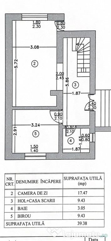
- parter cu o suprafata utila de 39.88 mp, compus din - living, birou, baie, hol plus casa scarii
- etaj cu o suprafata totala de 50.63 mp, suprafata utila 40.27 mp, compus din 2 dormitoare, baie, hol plus casa scarii
- teren 178 mp, deschidere 17.76 mp
- constructia 2018 din bca, izolatie exterioara de 10 mm cu vata bazaltica
- incalzire prin pardoseala, tigla metalica Bilka
- porti cu telecomanda, video interfon
- foisor cu gratar
- curte amenajata de peisagist
ID 225763 ACTIV IMOB: CASA te bucuri!!!
Număr Băi: 2
Demisol
Publicat prin HomeZZ.ro, vezi anunțul complet aici.
Anuntul Casa eleganta D P E, teren 178 mp, pretabila - clinica, locu este adaugat de pe LaJumate.ro.
Anunturi similare
480 EUR
Inchiriere ap 2 camere Nicolae Grigorescu
Ofer spre inchiriere ap 2 camere situat langa statia de metrou Nic Grigorescu. Ap recent renovat, in ...
380 EUR
Apartament 2 camere zona Doamna Ghica
Oferim spre inchiriere 2 camere in zona Doamna Ghica, 48 mp suprafata utila, decomandat, etaj 2 10. A ...
380 EUR
Apartament 2 camere zona Doamna Ghica
Oferim spre inchiriere 2 camere in zona Doamna Ghica, 48 mp suprafata utila, decomandat, etaj 2 10. A ...
78.000 EUR
Apartament 3 camere, zona Centrala, parter cu balcon, supraf
Apartament 3 camere, zona Centrala, parter cu balcon, suprafata totala 71mp. Dotat cu centrala termic ...
126.000 EUR
Proprietar Vand Ap 2 camere | Bucuresti Sector 6 Militari
Proprietar Vand Apartament 2 camere decomandat | New World Residence | Bucuresti Sector 6 Militari | ...
500 EUR
Chirie 2 camere Astra Brașov: 57 mp, AC și două balcoa...
Vă propunem spre închiriere un apartament cu două camere situat în Brașov, în cartierul Astra, pe str ...
700 EUR
Apartament 2 camere | Belvedere | 54mp utili
Stefania Paun ^ Real Estate ^ Aviatiei ^ Global Home Romania Apartamentul beneficiază de o poziționa ...
120 RON
Bichon mini toy baieti si fetite
2 baietei si o fetita mini toy isi cauta o noua casuta. pentru mai multe detalii si poze suplimentare ...
350 EUR
Apartament 2 camere zona Mosilor
Apartament de 58 mp, situat la etajul 2 al unui bloc construit în 1985, pe Calea Moșilor, aproape de ...
350 EUR
Apartament 2 camere zona Mosilor
Apartament de 58 mp, situat la etajul 2 al unui bloc construit în 1985, pe Calea Moșilor, aproape de ...








