Casa Pe Un Singur Nivel One Floor Villas
148.000 EUR
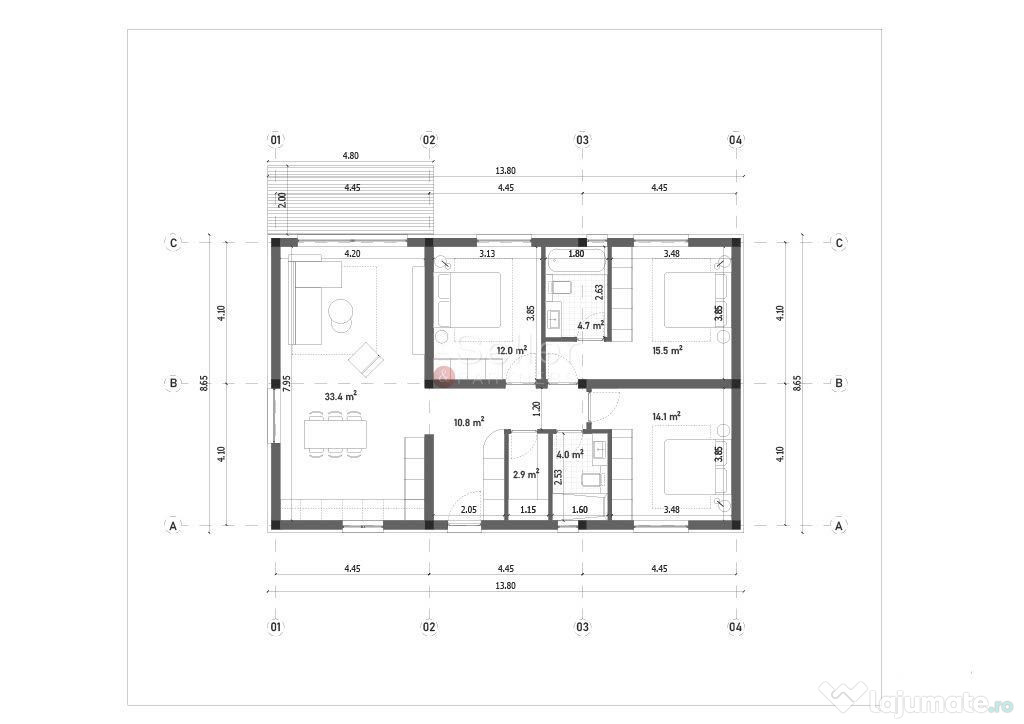
Imobilul propus este situat in Harman, in zona Decebal, avand acces facil la oras. Acesta este parte integranta dintr-o dezvoltare imobiliara, pozitionata departe de agitatia urbana, la doar 10 km distanta de Centrul Brasovului.Complexul este alcatuit din case individuale cu 4 camere, dispuse pe parter, avand suprafata utila de 97 mp si suprafata totala a terenului de 390 mp.
CONECTATI LA ZONELE TALE DE INTERES
In imediata apropiere a complexului vei regasi scoala, gradinita, supermarket-ul LIDL si farmacie.
Principalele puncte de interes ale Brasovului, ne sunt aproape, accesul direct catre Centura Ocolitoare, oferind o ruta convenabila, pentru a ajunge usor, in orice zona a orasului.
De asemenea, locatarii vor dispune de infrastructura, catre Brasov si zona comerciala aferenta acestuia, datorita proximitatii, avand acces facil si catre viitoarea Autostrada Bucuresti – Sibiu, cat si catre Aeroportul international Ghimbav | Brasov.
- Poiana Brasov | 25 minute;
- Aeroportul international Ghimbav | Brasov 15 minute;
- Piata Sfatului | Brasov | 16 minute;
DETALII TEHNICE
- Structura Rezistenta: Beton;
- Peretii Perimetrali & interiori - Zidarie Caramida;
- Izolatie Fatada - Polistiren grafitat 10 cm ESP 100;
- Tamplarie PVC, cu geam termopan;
- Sistem complet acoperis tigla metalica;
- Finisare pereti interior - exterior.
Proprietatea dispune de o compartimentare optimizata si eficienta, prin prisma spatiilor bine concepute.
COMPARTIMENTARE:
- Holul de acces;
- Zona de zi, include zona de dining si bucataria, de tip open space;
- Dormitorul principal, ce beneficiaza de baie proprie, dotata cu cada si aerisire naturala;
- Dormitoarele 2 si 3, cu spatii generoase si multa lumina naturala;
- Cea de a doua baie, dotata cu cabina de dus si aerisire naturala;
- Spatiu de depozitare, ideal pentru dressing;
- Terasa exterioara, cu acces din living.
Vila va fi conectata la retelele existente, de electricitate, apa, gaz si canalizare si va detine propria zona, destinata depozitarii deseurilor menajere.
DOTARI STANDARD
- Incalzire in Pardoseala;
- Aparataj modular;
- Sistemele sanitare;
- Centrala Termica;
- Obiecte Sanitare;
- Elemente ceramice in holul de acces si in cele doua bai;
- Parchet laminat;
- Usi interior;
- Usa acces.
Pretul de 148000 EURO + TVA este pentru plata integrala.
TERMEN PREDARE
- IUNIE 2026
Număr niveluri imobil: mai mult de 12
Număr Băi: 2
Posibilitate parcare: Da
Nr. locuri parcare: 1
Curent
Apă
Canalizare
Gaz
Încălzire
Publicat prin HomeZZ.ro, vezi anunțul complet aici.
Anuntul Casa Pe Un Singur Nivel One Floor Villas este adaugat de pe LaJumate.ro.


















Anunturi similare
25.000 EUR
Apartament 1 camera Vidin mobilata -utilata Libera
Agentia imobiliara Coaltini Solution , va ofera spre vanzare apartament 1 camera zona Vidin etaj 5( m ...
199.500 EUR
Casă modernă, Ciocănăi – 3 km de Trivale, COMISION 0%
✨ Visul tău de a locui într-o casă spațioasă și modernă, aproape de oraș, poate deveni realitate! Îți ...
120.500 EUR
Vânzare apartament decomandat 2 camere Tineretului - Pal...
Vă prezint un apartament decomandat de 2 camere, spațios, luminos, aflat la parterul înalt al unui bl ...
460 EUR
Apartament Tip Studio Berceni - Aparatorii Patriei
Avem apartamentul perfect pentru tine! Iata si motivele: Este complet mobilat si utilat. Are un aer f ...
95.500 EUR
3cam.dec-2bai,2balcoane,mutare imediata,8min metrou Leonida
Proprietar, prin agentie, vand apartament total decomandat, compus din 3 camere si dependinte, doua ...
49.000 EUR
LIBER! AP 2 camere, Calarasilor, decomandat - 55 mp
Apartament 2 camere, zona Calarasilor, *Etaj 4 cu pod *Boxa la subsol *Centrala termica *Balcon i ...
399 EUR
Garsoniera Bloc Nou Berceni - Metalurgiei Park - Grand Arena
Avem apartamentul perfect pentru tine! Iata si motivele: Este complet mobilat si utilat. Are un aer f ...
380 EUR
Apartament Modern Berceni - Aparatorii Patriei - Metrou
Avem apartamentul perfect pentru tine! Iata si motivele: Este complet mobilat si utilat . Are un aer ...
95.500 EUR
3cam.dec-2bai,2balcoane,mutare imediata,7min metrou Leonida
Proprietar, prin agentie, vand apartament total decomandat, compus din 3 camere si dependinte, doua ...
85.000 EUR
Vand sau schimb Ap. 2 Camere parcul IOR,confort,verdeata ...
Descopera eleganta si confortul intr-un apartament situat intr-una dintre cele mai apreciate zone din ...