Casa moderna, eficienta energetic cu un teren generos de 830
235.000 EUR
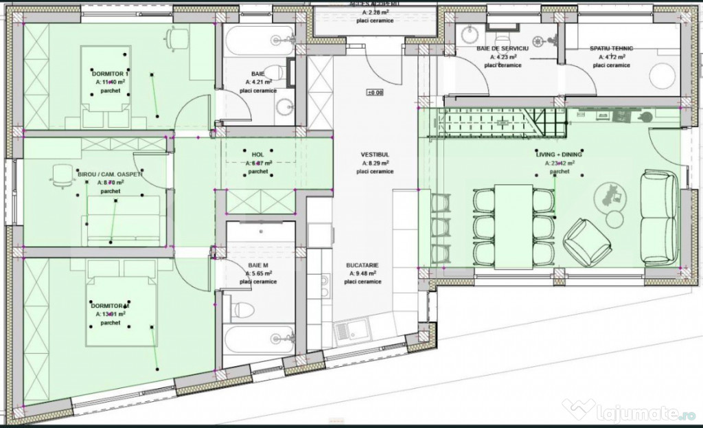
Blitz ofera spre vânzare casă individuală situată într-o zonă liniștită din Gilău, ideală pentru locuit, cu acces facil și un cadru natural plăcut. Proprietatea a fost construită în anul 2024, are o suprafață utilă de aproximativ 127 mp și este amplasată pe un teren generos de 830 mp.Casa este dispusă pe parter și mansardă și beneficiază de o compartimentare practică, incluzând living spațios, bucătărie , două dormitoare, fiecare cu baie proprie, inca un dormitor, trei băi, spațiu tehnic și zone bine gândite pentru confortul zilnic.
Construcția este realizată din cărămidă, cu izolație interioară și exterioară de 15 cm, acoperiș din țiglă și ferestre termopan. Proprietatea este dotată cu încălzire în pardoseală, pompă de căldură, panouri fotovoltaice de 11 kW, sistem de ventilație, mașină de spălat vase și finisaje moderne, fiind vândută complet mobilată și utilată.
O alegere excelentă pentru cei care caută o locuință nouă, eficientă energetic și pregătită pentru mutare imediată.
Cod ofertă / ID BLITZ: P162421
Id intern: P162421
Număr niveluri imobil: 1
Număr Băi: 3
Publicat prin HomeZZ.ro, vezi anunțul complet aici.
Anuntul Casa moderna, eficienta energetic cu un teren generos de 830 este adaugat de pe LaJumate.ro.
Anunturi similare
85.000 EUR
Apartament modern 63 mp + balcon + beci, stil zen periferie proprietar
Apartament modern 63 mp, balcon inchis + 4 mp beci, stil zen la periferie, proprietar direct. Dacă v ...
134.000 EUR
Apartament 2 camere, 50,2 mp, Craiovita Noua, zona Materna
Blitz va propune spre achitizie un apartament cu 2 camere semidecomandat, cu o suprafata de 50,2mp, s ...
91.000 EUR
Apartament 3 camere, 65 mp, zona Dancu
Blitz vă propune spre vânzare un apartament cu 3 camere, situat într-o zonă foarte bună, apreciată pe ...
85.000 EUR
Garsoniera decomandata, transformata in 2 camere 38mp zona 1
Garsoniera decomandata la parter, cu compartimentare eficientă și suprafață utilă de 37,9 mp, ideală ...
120.000 EUR
Apartament 2 camere, 70mp, Visan
BLITZ vă propune spre vânzare un apartament cu 2 camere, situat la etajul 3 al unui imobil amplasat î ...
304.999 EUR
Exclusivitate ! Duplex 5 camere, Lux, 115 mp, 270 mp teren,
Blitz va propune spre vanzare o casa de lux tip duplex in Floresti pe Strada Iazului in apropierea ce ...
118.000 EUR
Apartament 3 camere, 63 mp, zonaTorontalului
Blitz vă propune spre vânzare un apartament cu 3 camere, cu o suprafață utila de 63 mp,balcon 6,70 mp ...
482 EUR
Apartament 3 camere, 81 mp, zona Centrala
Blitz vă prezintă pentru închiriere un apartament rafinat, amplasat într-o zonă centrală, într-un imo ...
730 EUR
Apartament cu 2 camere, Isho view panoramic
Blitz vă prezintă pentru închiriere un apartament cu 2 camere, cu o suprafață utilă de 54 mp, semidec ...
430 EUR
Apartament 2 camere, 54 mp, Complex Studentesc
Blitz va ofera pentru inchiriere un apartament modern cu 2 camere, situat in zona Complex Studentesc, ...









