Casa P+E, 150mp, 5 camere teren 400mp, terasa, Lilieci, strada Rozleor
145.000 EUR
RAVIROM Imobiliare vinde cu comision zero la cumpãrãtor, o casã bine executatã, situatã in sat Lilieci, comuna Hemeius, pe strada Rozelor, la doi kilometri de bariera de la Gherãiesti.Construitã in 2.024, de cãtre proprietar, cu simt de rãspundere. Casa este din cãrãmidã, acoperitã cu tablã Bilka, izolatã exterior cu termosistem de 10, cu plasã peste acesta.
Compartimentare:
Parter:
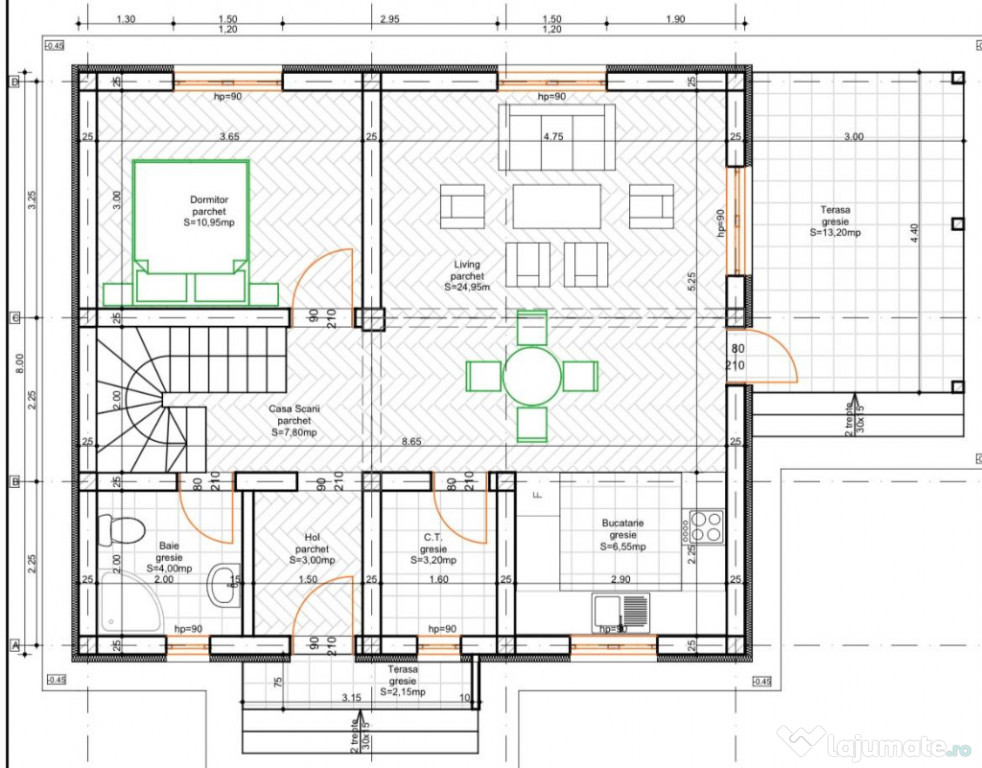
- hol, living, bucãtãrie open - space, camerã, baie, camerã tehnicã, casa scãrii;
Etaj:
- trei dormitoare, baie, hol;
Amprenta casei este de 90 mp, suprafata utila este de 150 mp, fiind amplasata pe un teren in suprafata de 400 mp.
Peretii interiori sunt din cãrãmidã. Are placã din beton, decorativã siliconatã.
Tamplaria este din termopan. Podul este izolat cu vatã de 20.
Deschiderea terenului este de 20 ml, cu drum privat de acces.
Casa se va vinde la cheie, viitorul proprietar având posibilitatea sã isi aleagã un buget pentru parchet, gresie, faiantã, instalatii sanitare, electrice, etc.
Din bucãtãrie si living, avem a doua iesire a casei, foarte practicã, intrucât dã in lateralul casei, pe terasã.
Fosã septicã ecologicã.
Pentru vizionarea acestei proprietati agentii nostri va stau la dispozitie, de luni pana vineri, intre 9 - 12,30 si 13,30 - 18,30, sambata intre 9,30 - 14,30.
COMISION 0 (ZERO) LA CUMPARATOR !
Aceasta oferta apartine RAVIROM Imobilare, cu sediul pe strada Erou Gheorghe Rusu 4, in spatele BRD central (pozitionat intre Alice Tour si Farmacia Naturii).
Consultant dedicat: Acilian Vitencu.
ID RAVI: 050032.
Ravirom - experti in imobiliare !
Publicat prin HomeZZ.ro, vezi anunțul complet aici.
Anuntul Casa P+E, 150mp, 5 camere teren 400mp, terasa, Lilieci, strada Rozleor este adaugat de pe LaJumate.ro.


















Anunturi similare
1.000 EUR
Casă de închiriat – 4 camere, 2 băi – Miroslava
✅ Detalii & dotări: 4 camere: 3 dormitoare (inclusiv unul matrimonial cu dressing & baie pro ...
82.000 EUR
Apartament 2 camere - Ovidiu, jud. Constanța
Vând apartament 2 camere, situat în Ovidiu, str. Națională, etaj. 2. Suprafața totală 51,4 mp, 48,3 m ...
168.000 EUR
Casă duplex Sângeorgiu de Mureș – 290 mp utili, teren 6
Blitz propune spre vânzare o casă tip duplex situată în Sângeorgiu de Mureș, într-o zonă liniștită și ...
390.000 EUR
Casa cu potențial deosebit, teren generos și compartimenta
Cauti o casa in Timisoara? Iti doresti o locatie buna si un proiect altfel? Unele locuințe nu sunt ...
33.000 EUR
Garsonieră compactă, 22 mp utili – ideală pentru elevi
Blitz vă propune spre vânzare o garsonieră practică și luminoasă, situată în zona Victotriei, ideală ...
250.000 EUR
Casa Central Bulevardul Castanilor Ploiesti
De vânzare casă situată în centrul orasului Ploiesti, într-o zonă rezidențială liniștită, situata pe ...
250.000 EUR
Ramnicu Valcea - Zona 0, Cartier Rezidential - 5 camere
BENEFICII PENTRU CLIENTII ACESTEI OFERTE: 1. Beneficii oferite de zona: Priveliste si vegetatie. Es ...
109.000 EUR
Apartament cu 3 camere în Zona 1Decembrie
Descoperiți oportunitatea perfectă de a vă transforma visul în realitate! Vă oferim un apartament sem ...
80.000 EUR
Apartament cu 3 camere, pe 2 nivele, Dumbravita
APOSTU ESTATE va propune spre vanzare, in exclusivitate, un apartament modern cu 3 camere, dispus pe ...
108.000 EUR
3 camere, parter, complet utilat – gata de mutat
Apartament cu 3 camere situat între strada Antiaeriană și Calea Rahovei, la parter, într-un bloc anve ...