Casa tip Duplez,zona Centura Sud
240.000 EUR
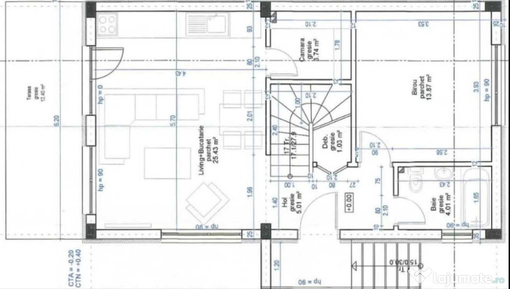
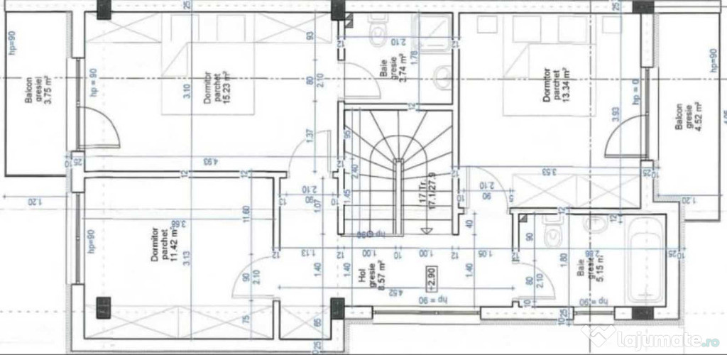
Vă propunem spre vânzare o casă tip duplex situată într-o zonă deosebit de liniștită și verde din localitatea Florești, în apropierea zonei Magnoliei și la doar câteva minute de centrul comercial VIVO, cu acces facil și rapid spre Cluj-Napoca. Imobilul face parte dintr-o construcție nouă, realizată cu materiale de calitate, fiind ideal pentru o familie care își dorește confort, intimitate și acces facil la toate punctele de interes. Casa are o suprafață utilă de 110 mp și este amplasată pe un teren de 200 mp, oferind un echilibru perfect între spațiul interior generos și curtea proprie, care poate fi amenajată ca grădină sau zonă de relaxare. Locuința este dispusă pe două niveluri: la parter se regăsesc holul de intrare, un living spațios, bucătăria separată cu cămară, precum și o baie cu geam pentru lumină naturală și ventilație. Etajul este compartimentat eficient și cuprinde trei dormitoare, dintre care unul matrimonial cu baie proprie, o baie comună și două balcoane ce oferă priveliști spre împrejurimile verzi ale zonei. Accesul auto în curte, terasa amenajabilă, grădina și liniștea cartierului contribuie la un stil de viață relaxat, departe de agitația urbană, dar totodată foarte bine conectat la oraș. Apropierea de stația de autobuz asigură o legătură rapidă și convenabilă cu Cluj-Napoca, fiind o opțiune excelentă și pentru cei care fac naveta zilnic. Construită pe fundație de beton, cu zidărie din cărămidă, acoperiș din tablă și izolație exterioară, casa beneficiază de finisaje moderne și dotări esențiale precum centrală proprie, ferestre termopan cu profil PVC și ușă de intrare din PVC. Aceasta este o oportunitate excelentă pentru cei care caută un cămin într-o zonă aerisită, aproape de natură, dar cu acces facil la toate facilitățile urbane. Pentru mai multe detalii sau vizionări, vă așteptăm cu drag la sediul EDIL Florești, pe Str. Eroilor, Nr. 25, Ap. 15 (et. 1), sau ne puteți contacta telefonic.id:246789Număr Băi: 3
Posibilitate parcare: Da
Nr. locuri parcare: 2
Curent
Apă
Canalizare
Gaz
Publicat prin HomeZZ.ro, vezi anunțul complet aici.
Anuntul Casa tip Duplez,zona Centura Sud este adaugat de pe LaJumate.ro.





Anunturi similare
319.500 EUR
Casa individuala 338 mp, teren 1400 mp, in Mihai Viteazu
Blitz vă propune spre vânzare o proprietate deosebită, cu suprafata totala de 338 mp locuibili, ampla ...
106.000 EUR
2cam.studio.lux/13min -pe jos Metrou N.Grigorescu,sector 3
Dezvoltator/Comision 0% Achizitie cash/credit. Info/vizionari - tel: 0720002332 Pretul afisat este v ...
899 EUR
Apartament 2 camere, 58mp, West City Tower
Se oferă spre închiriere un apartament modern și spațios, situat lângă Vivo, într-o zonă liniștită și ...
59.500 EUR
Apartament 2 camere, 32 mp, zona Fratelia
Blitz vă propune spre vânzare un apartament nemobilat, situat la parter, cu o suprafață utilă de 32 m ...
400 EUR
Apartament 2 camere,parcare subterana,zona Porii
Vă propunem spre închiriere un apartament cochet, modern și bine compartimentat, situat într-un imobi ...
110.000 EUR
2cam.dec.lux/13min -pe jos Metrou N.Grigorescu,sector 3
Dezvoltator/Comision 0% Achizitie cash/credit. Info/vizionari - tel: 0720002332 Pretul afisat este v ...
319.500 EUR
Casa individuala 338 mp, teren 1400 mp, in Mihai Viteazu
Blitz vă propune spre vânzare o proprietate deosebită, cu suprafata totala de 338 mp locuibili, ampla ...
120.000 EUR
2cam.studio.lux/13min -pe jos Metrou N.Grigorescu,sector 3
Dezvoltator/Comision 0% Achizitie cash/credit. Info/vizionari - tel: 0720002332 Pretul afisat este v ...
129.000 EUR
2cam.dec./13min -pe jos Metrou N.Grigorescu,sector 3
Dezvoltator/Comision 0% Achizitie cash/credit. Info/vizionari - tel: 0720002332 Pretul afisat este v ...
700 EUR
Apartament de lux, 2 camere, 55 mp, parcare
Blitz oferă spre închiriere un apartament spectaculos cu 2 camere — 55 mp de rafinament, confort și s ...