Apartament 2 camere - zona Izvor , Brasov , 0%Comision
99.000 EUR
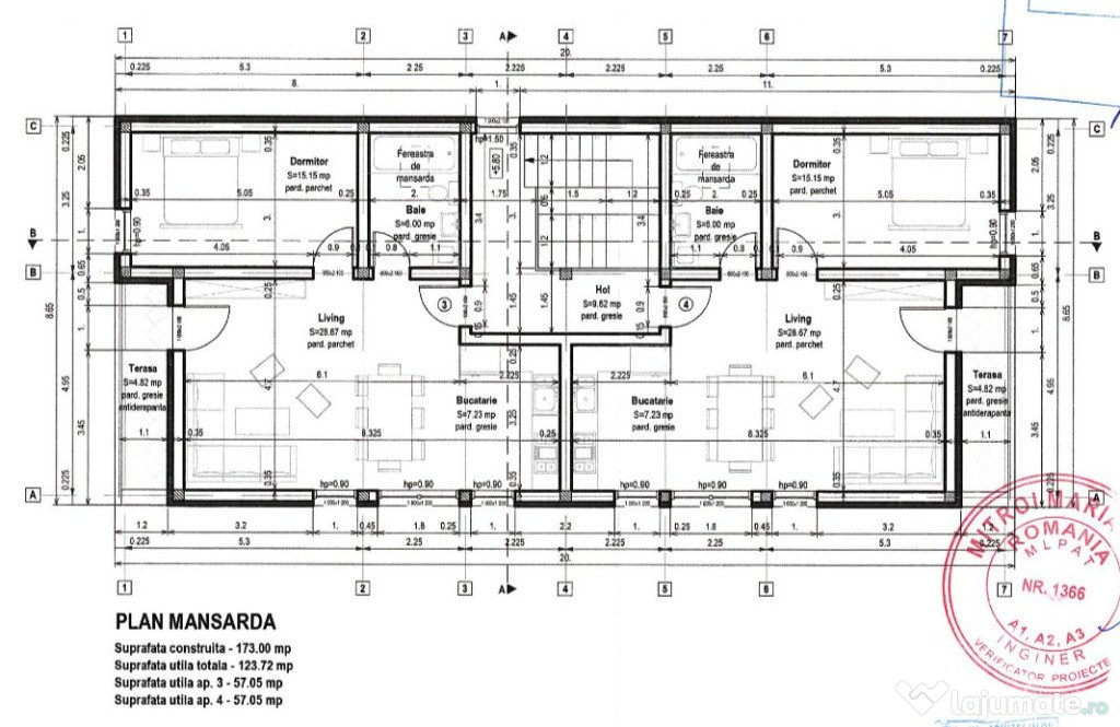
Apartamente noi cu 2 camere la mansardă – Cartierul Izvor, Brașov , 0%ComisionColosseum Invest vă propune spre vânzare 2 apartamente cu 2 camere, situate la mansardă, în Cartierul Izvor, Brașov, cu o suprafață utilă de 57 mp și terasă de 4,82 mp.
Predare: 2026
Preț: 99.000 €
Comision 0% pentru cumpărător
2 locuri de parcare incluse în preț
Detalii proprietate
Etaj: 2/2 (mansardă)
Compartimentare:
Hol
Living open-space cu bucătărie
Dormitor
Baie
Terasă
Stare: Nou
Suprafață utilă: 57 mp
Suprafață terasă: 4,82 mp
Facilități și dotări
Apartamentele se predau la cheie, cu finisaje interioare premium
Finisaje moderne, personalizabile în baza unui buget stabilit cu dezvoltatorul
Centrală proprie pe gaz
Încălzire în pardoseală
Gresie, faianță și parchet de calitate superioară
Băi complet amenajate și utilate
Geamuri Salamander 82 mm, sticlă triplex pentru izolare fonică și termică
Izolație superioară: pereți cu polistiren + vată minerală, 20 cm vată la pod pentru eficiență termică sporită
Alte avantaje
Acces facil către oraș
Posibilitate de plată: integral, în tranșe sau prin credit bancar
Proiect modern, confortabil și eficient energetic
Locație: Cartierul Izvor, Brașov
Disponibilă imediat!
Detalii și vizionări:
Florentina – Consultant Imobiliar
ascuns
Confort: 1
Tip imobil: Bloc de apartamente
Număr Băi: 1
Posibilitate parcare: Da
Nr. locuri parcare: 2
Publicat prin HomeZZ.ro, vezi anunțul complet aici.
Anuntul Apartament 2 camere - zona Izvor , Brasov , 0%Comision este adaugat de pe LaJumate.ro.












Anunturi similare
2.800 EUR
Ford Fiesta 2009 1,6 l
Ford fiesta 1,6 l an 2009 Mai multe informații la numărul de telefon 0739050007 ...
3.350 EUR
Seat Cordoba * 2009 * 115 . 000 KM *Unic Proprietar * full *
- TELEFON : 0792 ~ 460 ~ 625 - - - - - STARE IMPECABILĂ ( 115.000 KM ) - INTERIOR CURAT DE ...
7.500 EUR
Seat leon FR 1.4 TFSI
Vand Seat Leon, pachet FR, din 2013. Sunt proprietar, ofer fiscal, se vinde doar prin perfectarea act ...
7.790 EUR
Citroën en C4 Picasso
Se vinde autoturism Citroën C4 Picasso an fabricație 2016 213000km în creștere 1.6 bluehdi culoare al ...
4.900 EUR
Opel Insigna 2 TDI
Masina se afla intr-o stare foarte buna tehnica cat si optica, nu necesita nici o investitie, ruleaza ...
1.200 EUR
Vând Audi A3 8P 1.6 MPI
Audi A3 8P 1.6MPI 102 cai , cod motor BGU Perfect funcțională , necesită atenție pe exterior , 330.0 ...
2.500 EUR
Vând sau schimb cu vw sharan
Vând Audi a6 c6 2.7 an 2007 totul merge perfect recent am făcut servisul la el detali la tell +407756 ...
1.000 EUR
Audi A3 1.6 benzina, masina naveta
Vand Audi A3 1.6 benzina. Masina a fost folosita pentru naveta scurta. ...
9.990 EUR
Vand Mercedes Benz Vito 116CDI L1
Masina personala din Belgia, intrata in Romania pe roti. Numere provizorii valabile 3 luni. Programar ...
4.800 EUR
Vând Skoda Superb 2
De vânzare: Skoda Superb 2 - Mașina care a trecut prin toate aventurile! Vând cu drag Skoda Superb 2 ...