COMISION 0% - Apartamente cu 2 si 3 camere - Bdul Republicii 44
97.200 EUR
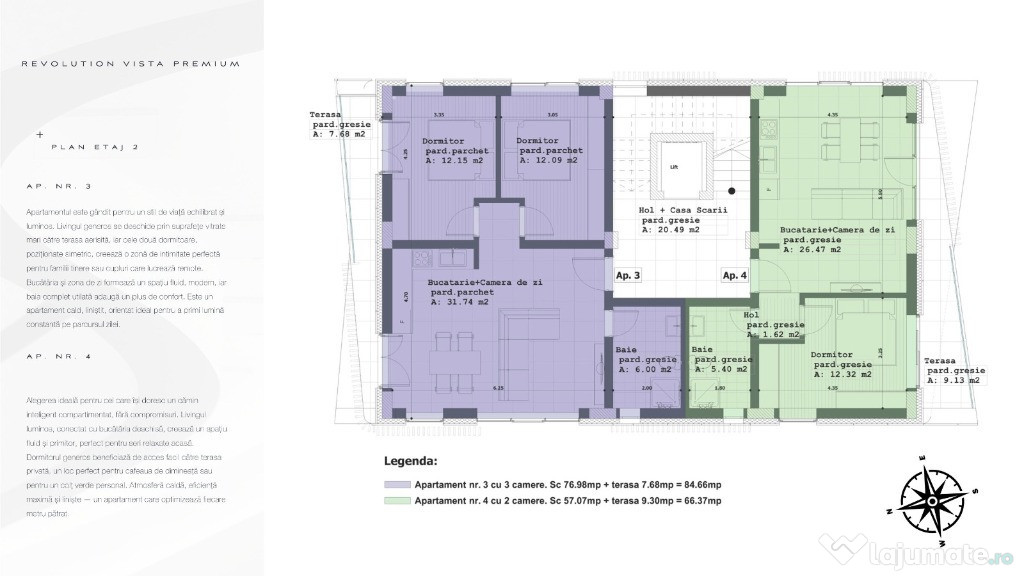
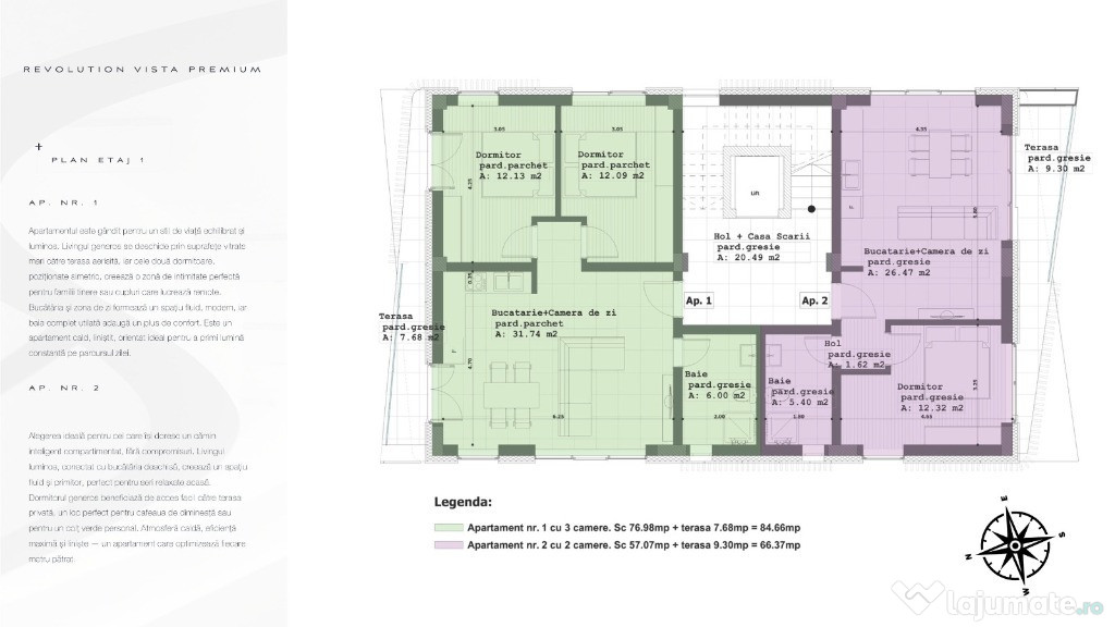
NEW! Descopera cel mai nou si modern complex rezidential REVOLUTION VISTA PREMIUM, situat in zona Catedralei Sfanta Treime, pe Bdul Republicii 44 din Baia Mare, un proiect marca Revolution Residence.Va propunem spre vanzare apartamente cu 2 si 3 camere ce au o suprafata cuprinsa intre 57.07 mpc si 76.98 mpc plus terasa cu suprafete cuprinse intre 7.68mpc si 9.3mpc.
Achizitioneaza unul din apartamentele cu 2 sau 3 camere si beneficiezi de design gratuit pentru amenajarea camerei de baie.
Detalii proiect:
- imobil locuinte P+4Etaje si cuprinde un total de 8 unitati de apartamente
- locatie: Bdul Republicii 44, Baia Mare
- fatada ventilata, costuri reduse in viitor legate de intretinerea exterioara
- termoizolatie exterioara realizata cu vata bazaltica de 15 cm
- peretii interiori dintre apartamente si cei comuni cu, casa scarii sunt formati din doua randuri de caramida plus vata bazaltica, pentru un confort termic si fonic sporit
- design ultra modern
- finisaje moderne
- parcare exterioara
- supraveghere video
- acces privat
- lift
- spatii comerciale la parterul blocului
- design interior personalizat pentru spatiile comune
- pozitionare excelenta, blocul fiind retras, ferit de agitatia orasului, pozitionarea fiind intr-o zona linistita
- standarde ridicate de siguranta si calitate
- imobilul se vinde locuibil, cu instalatie de incalzire prin pardoseala si centrala termica in condensare
Facilitati zona:
- culte religioase, Catedrala Sfanta Treime, la cca 200m distanta
- mall Shopping Park Baia Mare, la cca 250m distanta
- supermarket Lidl, Kaufland, la cca 250m distanta
- zona relaxare, parcul central, cca 500m distanta
- unitati de invatamant, cca 250m distanta
- zona cazare, hotel Europa, la cca 800m distanta
- statii alimentare Petrom, la cca 50m distanta
Preturi incepand de la 1450Euro mpc + TVA, care se va aplica conform normelor in vigoare.
Pentru mai multe detalii, ne puteti contacta la numarul de telefon 0372.477.477 ascuns
Confort: 1
Tip imobil: Bloc de apartamente
Publicat prin HomeZZ.ro, vezi anunțul complet aici.
Anuntul COMISION 0% - Apartamente cu 2 si 3 camere - Bdul Republicii 44 este adaugat de pe LaJumate.ro.
Anunturi similare
30.000 EUR
Camera de camin cu baie - zona Astra
ID intern: 19590 Colosseum Invest va propune spre vanzare o camera de camin cu baie, situata in zona ...
350 EUR
APARTAMENT 2 CAMERE SEMIDECOMANDAT TIC TAC
Va propunem spre inchiriere un apartament cu 2 camere semidecomandat, situat la etaj 3, in zona Tic T ...
52.500 EUR
2 cam - la curte comuna
BENEFICII PENTRU CLIENTII ACESTEI OFERTE: 1. Beneficii oferite de zona: - Apartamentul este situat ...
42.000 EUR
Garsoniera zona Pantelimn
Va oferim spre vanzare o garsoniera situata in zona Pantelimon, MEGA MALL. Garsoniera are o suprafata ...
400 EUR
APARTAMENT 2 CAMERE DECOMANDAT POARTA 6
Va propunem spre inchiriere un apartament cu 2 camere deocmandat, situat la etaj 2, in zona Poarta 6, ...
250 EUR
Gronira zon Panduri
Oferim spre inchiriere garsoniera la 5-7 minute de metrou Academia Militara. Zona Panduri, 13 Septemb ...
96.200 EUR
Casa luminoasa de 107 mp, 1.000mp teren, 250 m de izvorul cu
Comision cumparator 0% ASCENDENT IMOBILIARE COVASNA va propune spre vanzare, in Reprezentare Exclu ...
37.000 EUR
ID 2994 Apartament 2 camere - COMPLET RENOVAT
LUX Imobiliare vă propune spre vânzare un apartament cu 2 camere, complet renovat, situat pe strada M ...
25 EUR
PF inchiriez garsoniera Str. Taberei
PF inchiriez garsoniera pe strada taberei langa parcul rozelor. Garsoniera se alf a la etajul 3 si es ...
69.500 EUR
Apartament 3 camere boxa, parter, zona Complex Bulevard!
Avem cheile proprietatii. GalaxyImob Botosani, va propune spre vanzare un apartament format din 3 ca ...








