De neratat - vila la alb/4cam,2bai+parcare/centru Popesti...
170.000 EUR
Comision 0%, direct dezvoltator.Ultima vila insiruita, gata, acte gata, la alb, avand utilitatile orasului, doar sa va alegeti finisajele preferate(montajul va dura 50-60zile calendaristice, se lucreaza cu atentie la detalii).
Pentru vizionari/informatii, apelati: ascuns
Foto reale dintr-o vila finisata dupa gustul clientului.
Ansamblu de vile insiruite, gata, doar va alegeti finisajele si se preda la cheie), ce pune la dispozitie vile insiruite, compuse din 4 camere si dependinte, incluzand in pret si un loc de parcare, intr-un buget alocat(precizat mai jos), dar pe care-l puteti gestiona cum doriti si il puteti suplimenta in functie de necesitatile Dvs.
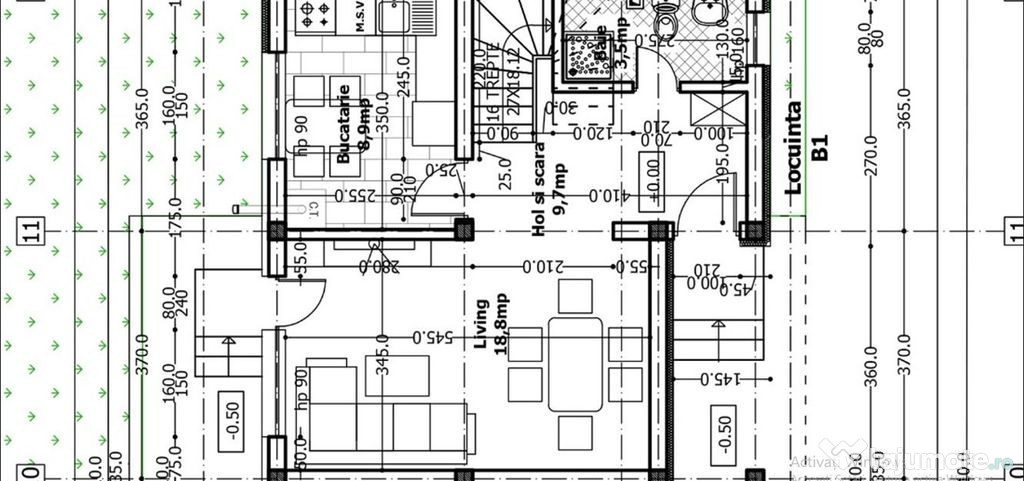
Imobilele au la parter hol, bucatarie inchisa generoasa, living si baie cu cabina de dus, iar la etaj 3 dormitoare, baie si hol. Ambele bai au aerisire naturala.Accesul in pod se face printr-o trapa cu scara.
Din living este accesul catre curte. Curtea are o suprafata de aproximativ 35mp.
Fiecare casa este acoperita cu tabla Bilka de 0.5mm grosime, culoare gri mat.
In pod este prevazuta o fereastra tip velux de 55/98 cm pentru ventilatie si lumina naturala.
Podul este izolat cu spuma(se preda ca atare) si are o suprafata utila de aproximativ 60mp, se preda finisat/compartimentat contra cost, daca se doreste.
Toate coloanele de apa, canalizare, termoficare, curent, cablu tv si internet sunt trase pana in pod, pentru cazul in care se doresc amenajari suplimentare.
Geamurile sunt de termopan marca Salamander, gri la exterior si alb la interior prevazute cu glafuri exterioare vopsite in camp electrostatic, culoarea gri.
Usa de intrare este metalica avand culoarea gri.
Casele dispun de centrale in condensare de 24kw, iar incalzirea va fi mixta, respectiv, parterul cu incalzire in pardoseala(fara baie) si radiatoare de otel in bai si la etaj.
Baia de la parter va avea cabina de dus, wc si lavoar, iar cea de la etaj cada, wc si lavoar.
Exteriorul va fi izolat cu termosistem de 10 cm grosime.
Balconul va fi placat cu gresie de exterior si va avea balustrada metalica.
Gardul pe spate va fi din elemente prefabricate din beton cu decor si intre case stalpi metalici si lemn natur.
Curtea se poate preda amenajata(doar la cerere, contra cost), avand alee de beton pe langa casa cu latimea de 80cm.
Locurile de parcare si drumul de acces vor fi betonate si vor fi alocate prin cota indiviza 1/12 incluse in pret.
Fiecare casa este contorizata individual la apa/gaz/curent.
Usile de interior de calitate, marca Classen/pline cu toc reglabil.
Bugete finisaje: gresie,faianta/60lei/mp, parchet+accesorii/50lei/mp, usi interior/800 lei( toc reglabil+montaj inclus), obiecte sanitare baie/2000lei/baie parter si, 2500lei/baie etaj.
Curtea este amenajata cu pavele, respectiv 0.8 m de lângă casa și o terasă de aproximativ 3.5x4=14mp. total pavaj 18 mp pe unitate.
Se accepta ca modalitate de plata cash/credit.
Număr niveluri imobil: 1
Număr Băi: 2
Posibilitate parcare: Da
Nr. locuri parcare: 1
Curent
Apă
Canalizare
Gaz
Încălzire
Publicat prin HomeZZ.ro, vezi anunțul complet aici.
Anuntul De neratat - vila la alb/4cam,2bai+parcare/centru Popesti... este adaugat de pe LaJumate.ro.


















Anunturi similare
500 EUR
Metalurgiei Drumul Binelui 234-236 studio
spre inchiriere apartament nou, disponibil in ansamblul rezidential Club Residence, un proiect imobil ...
89.900 EUR
DACIA - 4 CAM - ETJ.3 - ZONA EXCELENTA - DISPONIBIL IMEDIAT
Agentia Imobiliara PRIMUM - Timisoara are placerea de a va prezenta spre vanzare apartament cu 4 came ...
450 EUR
Dimitrie leonida studio nou cretestilor
Prima închiriere – apartament modern de 48 mp utili, situat la etajul 3 din 5 într-un bloc nou (2020) ...
133.808 EUR
2cam.-studio - bd.Brancoveanu-mall Grand Arena-Berceni-A....
Direct dezvoltator. Comision 0%. Info si vizionari, tel: 0720002332. Pret credit(avans minim 15-20%) ...
87.490 EUR
Vânzare garsonieră Tineretului
Vă ofer spre vânzare o garsonieră mobilată și utilată, pretabilă atât ca spațiu de locuit, cât și pen ...
1.300 RON
Chihuahua femela
Chihuahua femela 5 luni varianta mini nu are mai mult de 1 kg ...
450 EUR
Studio 81 Residence Biruinței,etaj 7,vedere piscina, 700m de M Berceni
spre inchiriere: Studio 81 Residence Biruinței, etaj 7/7, vedere piscina, 700m de Metrou Berceni (10 ...
1.300 RON
Pui adorabili de rasă Samoyed!
Avem 4 cățeluși adorabili de rasă Samoyed, disponibili pentru vânzare. Dintre aceștia, sunt 2 băieței ...
800 EUR
Apartament 4 camere decomandat Piata Veteranilor
Va prezint spre inchiriere un apartament cu 4 camere decomandat in cartier Militari zona Piata Vetera ...
45.000 EUR
Apartament 2 camere de vânzare – Dărmănești | Etaj 3
Obiectiv Imobiliare vă propune spre vânzare un apartament decomandat, cu 2 camere, situat la etajul 3 ...