DE VANZARE Casă / Vilă cu 4 camere Berceni-Vidra
128.000 EUR
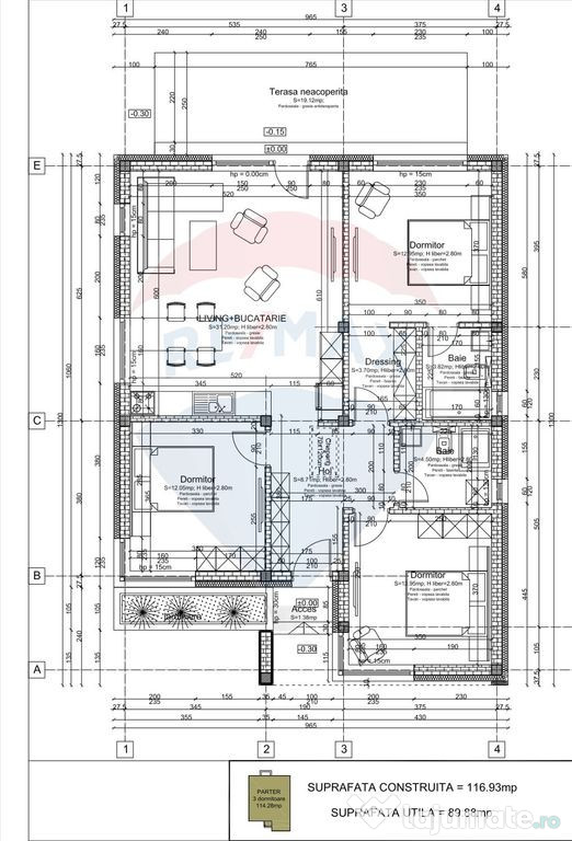
Vă propun spre vânzare o casă modernă, situată într-un cartier rezidențial nou din zona Berceni–Vidra, ideală pentru cei care își doresc liniște, confort și acces rapid către oraș.Imobilul este construit pe parter, are o suprafață utilă de 90 mp și este compartimentat inteligent, oferind funcționalitate și spațiu suficient pentru o familie:
• 3 dormitoare luminoase
• Living generos cu acces către terasă
• Bucătărie și băi organizate eficient
• Curte amenajată, cu gazon și spațiu verde
Casa are 2 locuri de parcare în față, iar ansamblul se remarcă printr-un design contemporan de tip open-front, adică fără gard în partea frontală, ceea ce conferă zonei un aspect modern, aerisit și coerent arhitectural.
Fațada este realizată în stil minimalist–modern, cu linii curate și finisaje în tonuri neutre, potrivite unui stil de viață actual. Zona este foarte liniștită, cu acces rapid către școli, magazine și mijloace de transport.
Incluse in preț - incălzire in pardoseala, sistem irigație, gazon, instalație pregatita pentru panouri solare
O proprietate ideală pentru familii tinere sau pentru cei care caută o locuință modernă, gata să devină „acasă”.
Număr niveluri imobil: mai mult de 12
Număr Băi: 2
Posibilitate parcare: Da
Nr. locuri parcare: 2
Curent
Apă
Gaz
Sistem irigaţie
Publicat prin HomeZZ.ro, vezi anunțul complet aici.
Anuntul DE VANZARE Casă / Vilă cu 4 camere Berceni-Vidra este adaugat de pe LaJumate.ro.
Anunturi similare
135.900 EUR
Apartament 2 camere + 2 locuri de parcare - Matei Millo, Vol
Un apartament cu două camere, luminos și bine compartimentat, situat la etajul 1 al unui bloc constru ...
167.500 EUR
Apartament 2 camere de vanzare pe Calea Baciului cu parca...
Vă propunem spre vânzare un apartament de 2 camere situat în Cluj-Napoca, Calea Baciului, nr. 62 - 64 ...
68.000 EUR
Apartament 2 camere-Pod de Piatra-bloc fara risc
Invest Imobiliare va propune spre vanzare un apartament cu 2 camere, model semidecomandat de 50 mp, s ...
148.000 EUR
Apartament 2 camere in Floreasca Residence
VG Real Estate vă propune spre vânzare un apartament situat în zona Floreasca, ideal pentru investiți ...
350 EUR
Garsoniera decomandata, Racadau, Brasov
Comisin inchiriere 50% TVA din prima chirie Ascendent Imobiliare va propune spre inchiriere o gars ...
750 EUR
Apartament 2 camere moderne Bulevardul Unirii - zona central
Galaxy Imob ofera spre inchiriere un apartament spatios si elegant de 2 camere, situat pe Bulevardul ...
165.000 EUR
Apartament de vanzare 3 camere 2 bai Centrul Istoric Sibiu C
Apartament 3 camere de vanzare, nedecomandat, 51 mp, zona Centrul Istoric, Sibiu. Exclusivitate ! Com ...
56.000 EUR
Apartament 2 camere, mobilat, utilat, zona Florilor!
ID intern: 24239 Colosseum Invest va propune spre vanzare apartament cu 2 camere, semidecomandat, co ...
120.000 EUR
Apartament zona Compozitori
Agentia Acord Imobiliar ,va propune spre vanzare un apartament cu 2 camere ,decomandat ,situat la eta ...
800 RON
Beagle tricolor 7 saptamani
5 puiuți de Beagle tricolor ???? își caută căsuța lor! ???? Un băiețel și patru fetițe, în vârstă de ...







