Duplex 120 mp, teren 595 mp, zona Sub Coasta intr-un ansambl
215.000 EUR
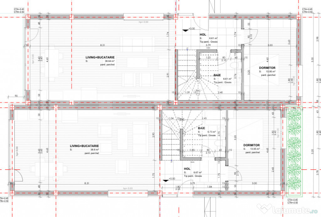
Descriere anunț:Blitz propune spre vânzare un duplex modern, cu suprafața utilă de 120 mp, amplasat pe un teren de 595 mp, situat în zona Sub Coasta, într-un ansamblu rezidențial nou, premium, ce beneficiază de multiple accese către Cluj-Napoca.
Proprietatea este inteligent compartimentată astfel:
Parter: living cu bucătărie open-space de 38 mp, dormitor, baie și hol.
Etaj: dormitor matrimonial cu baie proprie, dressing și terasă, al doilea dormitor cu baie proprie și hol.
Casa se predă la stadiul de semifinisat avansat, cu următoarele lucrări realizate:
pereții gletuiți și vopsiți cu lavabil,
izolație exterioară cu vată bazaltică de 10 cm și tencuială decorativă Sto,
tâmplărie PVC cu geam tripan Veka și glafuri din granit,
acoperiș izolat cu celuloză de 20 cm.
O proprietate ideală pentru cei care caută confort, spațiu și un cadru rezidențial de calitate, aproape de oraș, dar ferit de aglomerație.
Pentru mai multe detalii și programarea unei vizionări, nu ezitați să ne contactați!
Cod ofertă / ID BLITZ: P155267
Id intern: P155267
Număr niveluri imobil: 1
Număr Băi: 3
Nr. locuri parcare: 2
Curent
Apă
Canalizare
Gaz
Publicat prin HomeZZ.ro, vezi anunțul complet aici.
Anuntul Duplex 120 mp, teren 595 mp, zona Sub Coasta intr-un ansambl este adaugat de pe LaJumate.ro.





Anunturi similare
96.200 EUR
Prietenoasa casa,pe 1.000mp teren, valoroasa zonare:Valcele,
Comision cumparator 0% ASCENDENT IMOBILIARE COVASNA va propune spre vanzare, in Reprezentare Exclu ...
96.200 EUR
Prietenoasa casa,pe 1.000mp teren, valoroasa zonare:Valcele,
Comision cumparator 0% ASCENDENT IMOBILIARE COVASNA va propune spre vanzare, in Reprezentare Exclu ...
74.000 EUR
Tur 3DFILM!!Refugiu de vacanta, in pitorescul cadru:Lunca Br
Comision cumparator:0% ASCENDENT IMOBILIARE Va propunem spre vanzare o cabana, situata intr-o oaza ...
74.000 EUR
Tur 3DFILM!!Refugiu de vacanta, in pitorescul cadru:Lunca Br
Comision cumparator:0% ASCENDENT IMOBILIARE Va propunem spre vanzare o cabana, situata intr-o oaza ...
380 EUR
Chirie garsoniera în Cluj Napoca, cartierul Gheorgheni
De închiriat garsoniera in Cluj-Napoca, cartierul Gheorgheni, strada Detunata, în apropiere de baza ...
570 EUR
Garsoniera Sos. Nordului, WIN Herastrau, Intr. Gliei, parcare inclusa
Inchiriez garsoniera zona Soseaua Nordului-Cartierul Francez, WIN Herastrau, Intrarea Gliei 18, la 5 ...
120.000 EUR
FILM! Vila cocheta, renovata,400 mp teren,garaj,pivnita,Bran
Comision cumparator: 0% ASCENDENT IMOBILIARE TARGU MURES este onorata sa va prezinte spre vanzare o ...
127.000 EUR
Apartament 3 camere renovat complet - etaj 1/4 - Metrou Tita
Oferta Exclusiva. De vanzare apartament 3 camere situat la etajul 1 al unui bloc de 4 etaje amplasat ...
101.000 EUR
Apartament cu 2 Camere de LUX in Bloc NOU
Agentia Imobiliara Family va ofera spre vanzare un apartament elegant, situat intr-un bloc nou, intr- ...
265.000 EUR
Casă / Vilă de vanzare in Mogosoaia, Martha Bibescu
Casa moderna in zona exclusivista! Proprietatea ofera o combinatie perfecta intre confort si eleganta ...