Teren Intravilan zona Paco -Cuza Voda (Petresti)
60.000 EUR
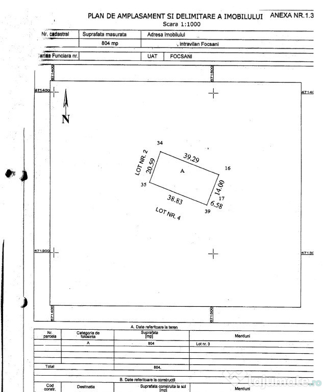
De vanzare 800 mp, intravilan – Focșani, zona Dedeman – PetreștiDacă îți dorești o casă exact așa cum ai visat, într-o zonă liniștită și sigură pentru familie, acest teren este alegerea ideală.
Cu o suprafață de 800 mp și o deschidere generoasă de 20,50 ml, terenul îți oferă libertatea de a crea un proiect rezidențial personalizat: o casă spațioasă, terasă, grădină, loc de joacă pentru copii sau un spațiu dedicat relaxării.
Avantaje importante:
- Zonă în plină dezvoltare, cu proiecte rezidențiale noi și infrastructură modernizată
- Acces rapid la Autostrada A7, care crește semnificativ valoarea investiției
- Preț sub nivelul pieței – o oportunitate rară în această zonă
- Utilități disponibile: apă, gaze, curent – reduc considerabil costurile inițiale
Acces imediat la teren de sport, sala Black Mamba Gym, magazinul Paco, Altdorf Tehnik (str. Cuza Vodă)
Locația îmbină perfect liniștea departe de agitația orașului cu accesul facil la toate punctele de interes.
Aici îți poți construi casa visurilor tale, cu grădină, spațiu pentru copii, loc de relaxare și planuri de viitor.
Un teren cu adevărat potrivit pentru a transforma ideile în realitate.
Pretul zonei 90-100 euro MP
Comision cumpărător: 0%
Publicat prin HomeZZ.ro, vezi anunțul complet aici.
Anuntul Teren Intravilan zona Paco -Cuza Voda (Petresti) este adaugat de pe LaJumate.ro.
Anunturi similare
298 RON
Motoras stergator hayon Dacia Duster 2012
Motoras stergator hayon Dacia Duster 2012. Cod(uri): 287102467R. Piesele comercializate sunt origina ...
298 RON
Broasca dreapta spate Volkswagen Passat B8 2016
Broasca dreapta spate Volkswagen Passat B8 (cod motor: ) 2016. Cod(uri): 5E0839016. Piesele comercia ...
357 RON
Volan cu comenzi Ford B-MAX 1.0 Benzina 2015
Volan cu comenzi Ford B-MAX 1.0 (cod motor: ) Benzina 2015. Piesele comercializate sunt originale, ...
298 RON
Maner exterior dreapta fata Volkswagen Tiguan 2020
Maner exterior dreapta fata Volkswagen Tiguan (cod motor: ) 2020. Piesele comercializate sunt origin ...
178 RON
Ornament aripa dreapta spate Ford B-MAX 2015
Ornament aripa dreapta spate Ford B-MAX 2015. Cod(uri): AV11R29612BEC3AD. Piesele comercializate sun ...
178 RON
Ornament aripa stanga spate Ford B-MAX 2015
Ornament aripa stanga spate Ford B-MAX 2015. Cod(uri): AV11R29613BF. Piesele comercializate sunt ori ...
155 RON
Macara geam dreapta fata Volkswagen Passat B8 2012
Macara geam dreapta fata Volkswagen Passat B8 (cod motor: ) 2012. Cod(uri): 3G0837462B. Piesele come ...
298 RON
Macara geam dreapta fata Volkswagen Tiguan 2020
Macara geam dreapta fata Volkswagen Tiguan (cod motor: ) 2020. Piesele comercializate sunt originale ...
714 RON
Compresor AC Renault Megane 3 1.6 Motorina 2014
Compresor AC Renault Megane 3 1.6 Motorina 2014. Cod(uri): 926004EB0A. Piesele comercializate sunt or ...
476 RON
Clapeta acceleratie Renault Megane 3 1.6 Motorina 2014
Clapeta acceleratie Renault Megane 3 1.6 Motorina 2014. Cod(uri): 161A04572R, A2C53350753, H820106190 ...









