Gars.dec.-mob-util complet+parcare/centru Popesti-Leordeni
63.500 EUR
Proprietar,vand prin agentie(detalii si stabilire vizionare la: ascuns ),
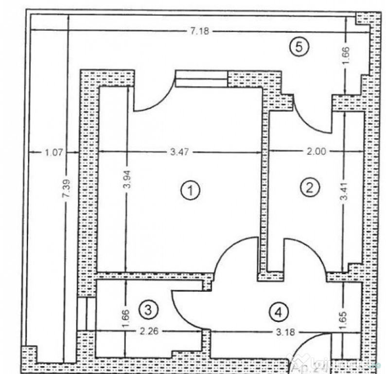
garsoniera total decomandata, compusa din hol de decomandare, baie cu aerisire naturala, camera de zi, bucatarie inchisa, balcon tip logie(terasa cu o suprafata foarte generoasa de aproape 15mp), avand iesiri in acesta, atat din camera de zi cat si din bucatarie, cu posibilitatea inchiderii partiale sau totale.
Garsoniera se vinde mobilata si utilata complet ca in fotografii.
In pretul afisat, este inclus si un loc de parcare cu numar cadastral propriu.
Locatia blocului este pe str. Sf. Agnes, la 7-8minute de mers pe jos pana in centrul orasului Popesti-Leordeni(unde gasiti toate facilitatile de care aveti nevoie: statie STB, Mega Image, scoala, gradinita, liceu, sedii bancare, piata, farmacii, etc.), intr-o zona aerisita de case si vile cu regim mic de inaltime, p+2+m,
Locuinta beneficiaza de toate utilitatile orasului, internet si cablu TV, iar dispunerea acesteia ofera o lumina naturala foarte buna pe tot parcursul zilei.
Comision pentru cumparator: 2% din valoarea de tranzactionare.
Confort: 1
Tip imobil: Bloc de apartamente
Posibilitate parcare: Da
Nr. locuri parcare: 1
Publicat prin HomeZZ.ro, vezi anunțul complet aici.
Anuntul Gars.dec.-mob-util complet+parcare/centru Popesti-Leordeni este adaugat de pe LaJumate.ro.


















Anunturi similare
500 EUR
Apartament 2 camere - Garden Residence Copou
Agenția DHD Imobiliare vă propune spre închiriere un apartament de 2 camere tip open-space, situat în ...
290 EUR
Metrou 1 Decembrie - garsoniera - mobilata si utilata
BENEFICII PENTRU CLIENTII ACESTEI OFERTE: 1. Beneficii oferite de zona: 2. Beneficii tehnice ale of ...
800 EUR
Apartament 2 Camere Premium - Piata Natiunile Unite / Unirii
Iti ofer spre inchiriere un apartament exclusivist de 2 camere in inima Bucurestiului, zona Piata Nat ...
59.990 EUR
Apartament cu 2 camere de vânzare Victor Babes
Oferim spre vânzare un apartament cu două camere, semidecomandat, situat într-o zonă excelentă aproap ...
94.999 EUR
Apartament cu 3 camere, decomandat, centrala proprie, zon...
APOSTU ESTATE vă propune spre vânzare un apartament spaţios cu 3 camere, situat în zona Dambovita, id ...
109.000 EUR
BUCOVINA - 3 CAM - DECOMANDAT - 2 BAI - CENTRALA - SPATIOS -
Agentia Imobiliara PRIMUM - Timisoara are placerea de a va prezenta spre vanzare apartament cu 3 came ...
126.500 EUR
Apartament 2 camere mobilat Baneasa Sisesti Apicultorilor
Vanzare apartament complet mobilat si utilat, in zona Baneasa Sisesti, pe strada Apicultorilor. Aces ...
114.000 EUR
Apartament cu 2 camere si 2 balcoane etaj 1 in Selimbar
Se vinde in Selimbar, la doar 200 m fata de zona comerciala Shopping City apartament intabulat cu 2 c ...
100.000 EUR
Apartament deosebit, piata Veteranilor, bloc stradal, rea...
Te invit să descoperi un apartament de 2 camere, situat într-un bloc stradal, reabilitat termic, la n ...
129.000 EUR
Apartament 2 camere Centru Civic
Vând apartament 2 camere zona Centru Civic,strada Zizinului lânga Biserica Greco-Catolică,etaj 4/8,Cf ...