Inch.vila 7cam/(348util,500teren,119ampr.)mp/5min.metrouA...
3.000 EUR
Proprietar, prin agentie,Inchiriez vila(construita in regie proprie) individuala, dispusa pe parter, etaj si pod mansardat, situata la 5-7min de mers pe jos pana la statia de metrou Ap. Patriei, avand dubla deschidere, cu posibilitatea parcarii a 4-5 masini(2 in curte si 3 pe zona de proprietate), mobilata si utilata complet.
Arata exact ca in fotografii; este certificata energetic casa A.
Dispune atat de loc de joaca(amenajat deasupra piscinei exterioare) pentru copii, cat si de piscina.
Beneficiaza atat de toate utilitatile publice(apa, energie electrica, gaz, internet-cablu TV) cat si de put propriu cu hidrofor pentru alimentarea cu apa a piscinei si intretinerea spatiului verde.
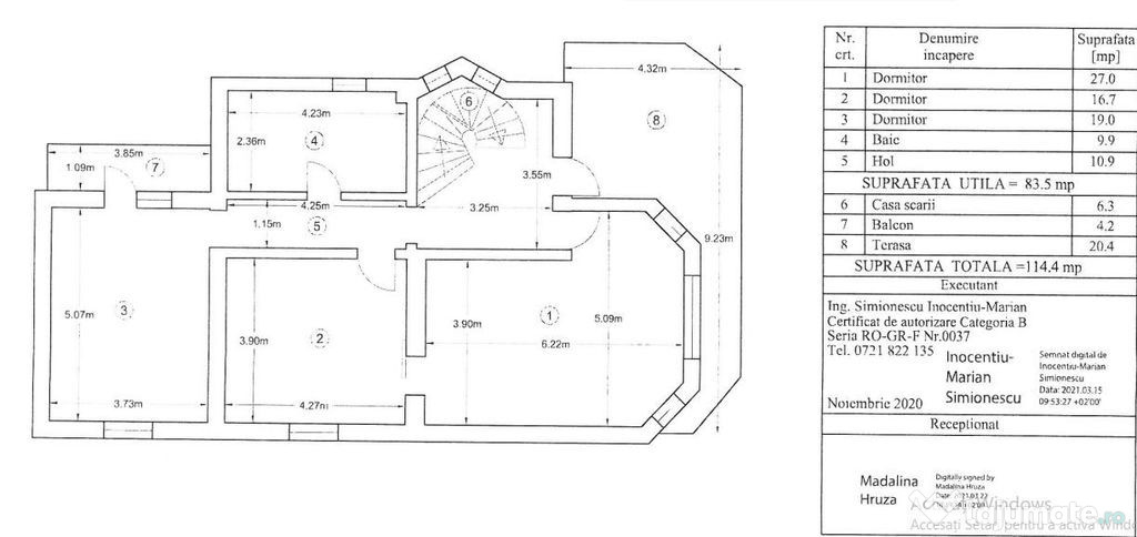
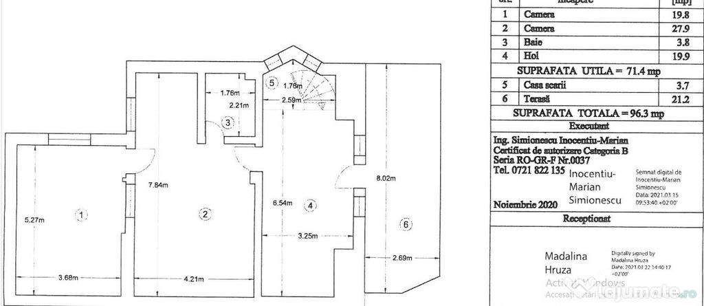
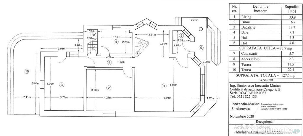
Va rog sa regasiti in informatiile atasate, fotografiile si releveul corespunzator pe fiecare nivel in parte.
Mai multe detalii, pentru potentialii clienti interesati, la tel: ascuns
In momentul inchirierii, se solicita plata in avans pentru o luna de chirie + o luna de chirie garantie + 50% din valoarea unei luni de chirie(comisionul agentiei), adica 3000euro + 3000euro + 1500euro=7500euro.
Plata poate fi in euro sau echivalent curs valutar BNR din ziua platii.
Număr niveluri imobil: 1
Număr Băi: 3
Posibilitate parcare: Da
Nr. locuri parcare: 4
Curent
Apă
Canalizare
Gaz
Sistem irigaţie
Încălzire
Climă
Subsol
Publicat prin HomeZZ.ro, vezi anunțul complet aici.
Anuntul Inch.vila 7cam/(348util,500teren,119ampr.)mp/5min.metrouA... este adaugat de pe LaJumate.ro.


















Anunturi similare
255.000 EUR
Apartament de in Barbu Vacarescu
Va propunem spre achizitie un apartament modern situat intr-un complex rezidential cu acces facil din ...
Gratuit
Donez Labrador femela
Se doneaza Labrador femela. Este sterilizata ...
1.150 EUR
Apartament 3 camere de inchiriat - Complex rezidential As...
Va propun spre inchiriere un apartament cu 3 camere, situat in Complexul Rezidential Asmita Gardens. ...
11.000 EUR
Casa de vanzare in Sat Segarcea Deal ,jud Teleorman
Casa de vanzare in Comuna Srgarcea Vale ,Sat Segarcea Deal ,jud Teleormam ,la 145 km distanta de Bucu ...
550 EUR
Apartament 3 camere, de lux, Ploiesti, zona Marasesti
Inchiriere apartament 3 camere, de lux, in Ploiesti, zona Marasesti, situat la etajul 1 al unui imobi ...
280 EUR
Inchiriez garsoniera
Zona Titan Punct de reper - Auchan Titan - 8 min Etaj 5 din 10 Recent renovat ...
75.000 EUR
Vand Apartament doua camere decomandate 48 mp utili plus 7mp balcon
Proprietar vând apartament cu două camere decomandate in Sibiu zona Hipodrom 4 situat la et.10 al un ...
320 EUR
Proprietar - Inchiriez Garsoniera complet utilata - Str Bârcă, nr 10
Inchiriez garsoniera, bloc stradal, et 9/10, bloc mixt. Adresa: Str. Bârcă, nr. 10,bl M186, sc 1, et ...
125.000 EUR
Apartament 2 camere,ultrafinisat,cu parcare subterană–Flo
Vă propunem spre vânzare un apartament modern, cu 2 camere, situat la etajul 3/4 al unui imobil nou, ...
90.000 EUR
Apartament 2 camere 55mp parter Inel 2
Vă propunem spre vânzare in reprezentare exclusiva un apartament cu 2 camere semidecomandat, situat l ...