COMISION 0% - Apartamente cu 3 camere - Bdul Republicii 44, Baia Mare
128.600 EUR
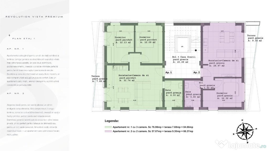
NEW! Descopera cel mai nou si modern complex rezidential REVOLUTION VISTA PREMIUM, situat in zona Catedralei Sfanta Treime, pe Bdul Republicii 44 din Baia Mare, un proiect marca Revolution Residence.Va propunem spre vanzare apartamente cu 3 camere ce au o suprafata de 76.98 mpc plus terasa in suprafeta de 7.68mpc.
Achizitioneaza unul din apartamentele cu 3 camere si beneficiezi de design gratuit pentru amenajarea camerei de baie.
Detalii proiect:
* imobil locuinte P+4Etaje si cuprinde un total de 8 unitati de apartamente
* locatie: Bdul Republicii 44, Baia Mare
* fatada ventilata, costuri reduse in viitor legate de intretinerea exterioara
* termoizolatie exterioara realizata cu vata bazaltica de 15 cm
* peretii interiori dintre apartamente si cei comuni cu, casa scarii sunt formati din doua randuri de caramida plus vata bazaltica, pentru un confort termic si fonic sporit
* design ultra modern
* finisaje moderne
* parcare exterioara
* supraveghere video
* acces privat
* lift
* spatii comerciale la parterul blocului
* design interior personalizat pentru spatiile comune
* pozitionare excelenta, blocul fiind retras, ferit de agitatia orasului, pozitionarea fiind intr-o zona linistita
* standarde ridicate de siguranta si calitate
* imobilul se vinde locuibil, cu instalatie de incalzire prin pardoseala si centrala termica in condensare
Facilitati zona:
* culte religioase, Catedrala Sfanta Treime, la cca 200m distanta
* mall Shopping Park Baia Mare, la cca 250m distanta
* supermarket Lidl, Kaufland, la cca 250m distanta
* zona relaxare, parcul central, cca 500m distanta
* unitati de invatamant, cca 250m distanta
* zona cazare, hotel Europa, la cca 800m distanta
* statii alimentare Petrom, la cca 50m distanta
Preturi incepand de la 1450Euro mpc + TVA, care se va aplica conform normelor in vigoare.
Pentru mai multe detalii, ne puteti contacta la numarul de telefon 0372.477.477 ascuns
Confort: 1
Tip imobil: Bloc de apartamente
Publicat prin HomeZZ.ro, vezi anunțul complet aici.
Anuntul COMISION 0% - Apartamente cu 3 camere - Bdul Republicii 44, Baia Mare este adaugat de pe LaJumate.ro.
Anunturi similare
100 EUR
Vand Teren Valu lui Traian
Vand teren Valul lui Traian partea dreapta spre Murfatlar , str VIEI drum asfaltat care duce spre cra ...
69.900 EUR
Teren 3,700mp intravilan Satu Nou Panciu
Vând teren intravilan cu suprafața de 3.700 mp. Toate utilitățile disponibile Curent electric tri ...
175.000 EUR
Oportunitate , 2000 mp , trafic auto , zona Dedeman Suceava
Teren intravilan cu suprafața de 2.000 mp, deschidere generoasă de 20 ml la stradă asfaltată, ideal p ...
60.000 EUR
Teren Extravilan 33,6 ari, Zona Frumoasa, Scheia.
Blitz imobiliare va propune un teren cu o suprafata de suprafață totală: 3.361 mp, cu deschidere de 1 ...
100 EUR
Teren intravilan JILAVA
Teren construibil, 1150mp, str Morii, Jilava cadastru, utilitati , delimitat clar, ...
65.000 EUR
Teren intravilan, suprafata 1214 mp, zona Moara
Blitz oferă spre vânzare un teren intravilan cu suprafața de 1214 mp, având o deschidere de 26 ml. - ...
2.150.000 EUR
Teren 44,728mp Focsani / Bulevardul Brailei
Teren intravilan – 44.728 mp! Poziție Excelentă pe Bulevardul Brăilei Descriere Generală Acest tere ...
425.000 EUR
Teren intravilan 4800 mp, front 20 ml, Zona Penny - Moara
Teren cu potențial major lângă Penny – Moara | Investiție într-o zonă care crește rapid Sunt zone ca ...
140.000 EUR
Teren intravilan 1663 mp, front 132 ml, Zona Saliste - Sf. I
Teren cu poziție strategică în Săliște – Sf. Ilie | Deschidere rară, potențial mare Unele proprietăț ...
77.000 EUR
Teren intravilan 1.000 mp – Sfântu Ilie, Suceava
Acesta este genul de teren care îți dă spațiu să respiri. Cu 1.000 mp, în Sfântu Ilie, aproape de Suc ...









