Showroom | Retail | HORECA | Fbr. de Glucoză | 6m inaltime
4.452 EUR
Punem la dispoziție trei spații comerciale situate la parterul ansamblului Belvedere, într-o zonă cu cel mai mare ritm de dezvoltare din nordul Bucureștiului.Într-un perimetru de aproximativ 500 de metri se regăsesc peste 2.300 de apartamente deja locuite, iar altele sunt în curs de construcție — ceea ce generează un flux constant de clienți și vizibilitate ridicată.
Spațiile sunt pretabile pentru:
showroom-uri (mobilă, decorațiuni, electrocasnice, biciclete, sport etc.)
activități comerciale (retail, supermarket, farmacii, servicii)
HORECA (bistro, coffee shop, restaurant, concept bar, grab & go)
clinici, saloane, fitness boutique, cabinete medicale
Acces imediat la metrou Pipera – flux pietonal intens
Apropiere de cele mai importante clădiri corporate din zonele Barbu Văcărescu – Dimitrie Pompeiu
Conectivitate excelentă către Autostrada A3
Zonă în continuă dezvoltare (noi proiecte rezidențiale și office în execuție)
Vizibilitate crescută și vitrine generoase
Caracteristici comune ale spațiilor
Înălțime liberă 6 metri, ideală pentru mezanin metalic (posibilitatea de a obține etaj suplimentar)
Open-space ușor de adaptat oricărui concept
Grupuri sanitare proprii și toate utilitățile
Acces pietonal și auto facil
Spațiile disponibile
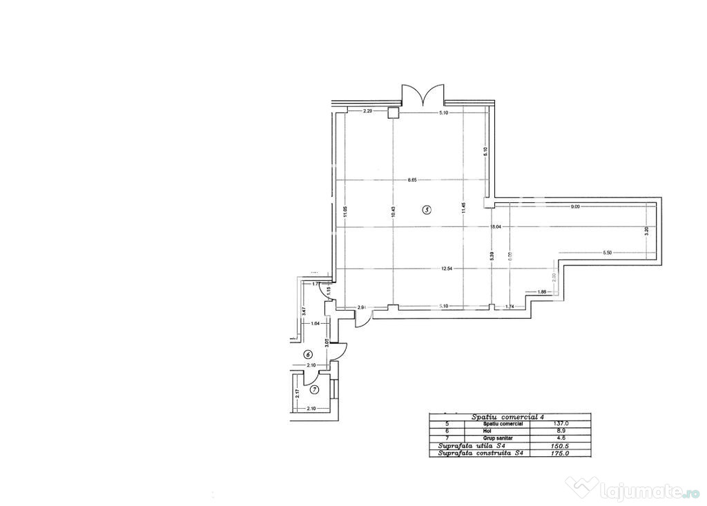
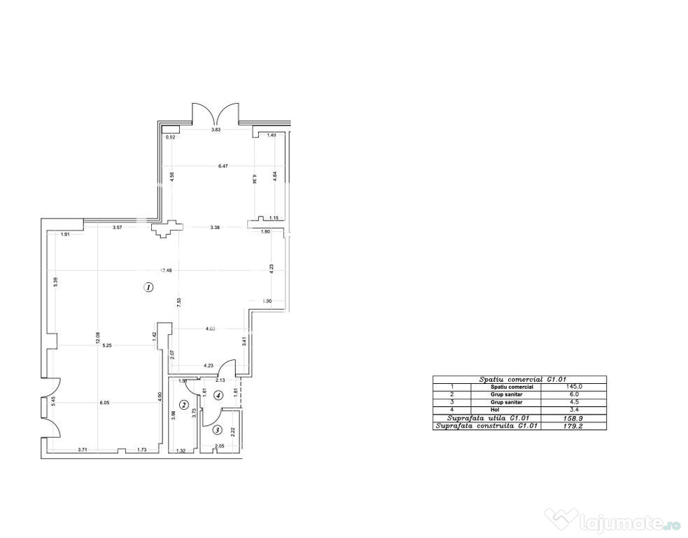
1. Spațiu comercial – 179 mp construiți (158,9 mp utili)
-Preț: 28 €/mp/lună
2. Spațiu comercial – 177 mp construiți (165 mp utili)
-Preț: 28 €/mp/lună
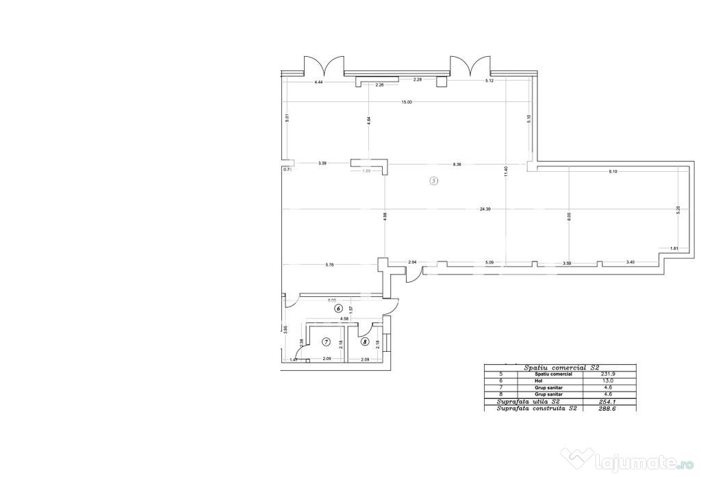
3. Spațiu comercial mare – 289 mp construiți (aprox. 245–250 mp utili)
-Vitrină extinsă, ideal pentru branduri cu trafic mare sau HORECA
-Preț standard: 27 €/mp/lună
-25 €/mp/lună în primul an
Disponibilitate
Spațiile sunt disponibile imediat.
Locuri de parcare disponibile 50€
Spatiile se predau la gri.
Pentru detalii și vizionări, mă poți contacta în privat.
Comisionul este 0%
Suprafaţă totală: 179 m²
An finalizare construcție: 2021
Vitrină: 15.0 m
Stadiu construcţie: Finalizat
Număr încăperi: 1
Posibilitate parcare: Nu
Tip imobil: Bloc de apartamente
Publicat prin HomeZZ.ro, vezi anunțul complet aici.
Anuntul Showroom | Retail | HORECA | Fbr. de Glucoză | 6m inaltime este adaugat de pe LaJumate.ro.
Anunturi similare
7.059 EUR
Spatiu de Birouri de 543 mp in Zona Baneasa
Spatiu de birouri de inchiriat ndash; Baneasa Business amp; Technology Park, Sos. Bucuresti-Ploiesti ...
10.280 EUR
Spatiu de Birouri de 623 mp in Zona Floreasca
Spatiu de birouri de inchiriat ndash; Zona Floreasca, Bucuresti Etaj 5 ndash; 623 mp spatiu birou 2 ...
3.250.000 EUR
Oportunitate de Investiție în Exclusivitate: Hotel Imperiu
Oportunitate de Investiție în Exclusivitate: Hotel Imperium-Proprietate de Lux cu Potențial Major. S ...
225.000 EUR
Pensiune turistica + casa de locuit, 315 mp, teren 761 mp, z
Blitz va ofera spre vanzare o pensiune turistica superba + casa de locuit aproape de zone de interes ...
200 EUR
De inchiriat magazin alimentar, central 100 mp,parter, sat C
BLITZ ofera spre închiriere un spațiu comercial generos, situat chiar în centrul satului Caila, într- ...
1.780 EUR
Spațiu Birou Elegant de Închiriat, Palatul Stern, 4 camere
Blitz vă oferă spre închiriere un spațiu de birouri generos desfășurat pe o suprafață de 178mp în inc ...
450 EUR
Spațiu Birou Elegant de Închiriat, Palatul Stern, 2 camere
Blitz vă oferă spre închiriere 2 camere foarte drăguțe de birou în incinta unui spațiu comercial eleg ...
574.900 EUR
Spațiu de Birouri Elegant, Palatul Stern, 178mp
Blitz vă oferă spre vânzare un spațiu de birouri nemaipomenit si rar întâlnit în piață. Aflat în minu ...
156.900 EUR
Spațiu Birou Impecabil, Palatul Stern, 2 camere
Blitz vă oferă spre vânzare un apartament finisat cu mult gust pregătit pentru a deveni noul birou al ...
1.300 EUR
Spatiu comercial 200mp zona Calea Dumbravii
Smart Imobiliare ofera spre inchiriere spatiu comercial cu suprafata de 200mp+ 200mp de terasa, situt ...









