Spațiu Comercial Modern 3 camere Primul Chiriaș După Reno
Haus Imobiliare vă propune spre închiriere un spațiu comercial complet renovat, situat în zona centrală din Năvodari, pe strada Rândunelelor – o zonă cu acces excelent, trafic pietonal și rutier ridicat, aproape de instituții, magazine, farmacii și mijloace de transport. Poziția este ideală pentru orice activitate profesională care necesită vizibilitate și acces facil pentru clienți.Spațiul are o intrare frumoasă, cu zonă verde amenajată (închiriată și întreținută), precum și scări și rampă pentru persoane cu dizabilități, oferind accesibilitate totală.
Interiorul este nou în proporție de 100%, fiind oferit spre închiriere pentru primul chiriaș după renovare. Toate instalațiile, finisajele și dotările sunt complet schimbate, ceea ce oferă condiții moderne și sigure pentru desfășurarea activității.
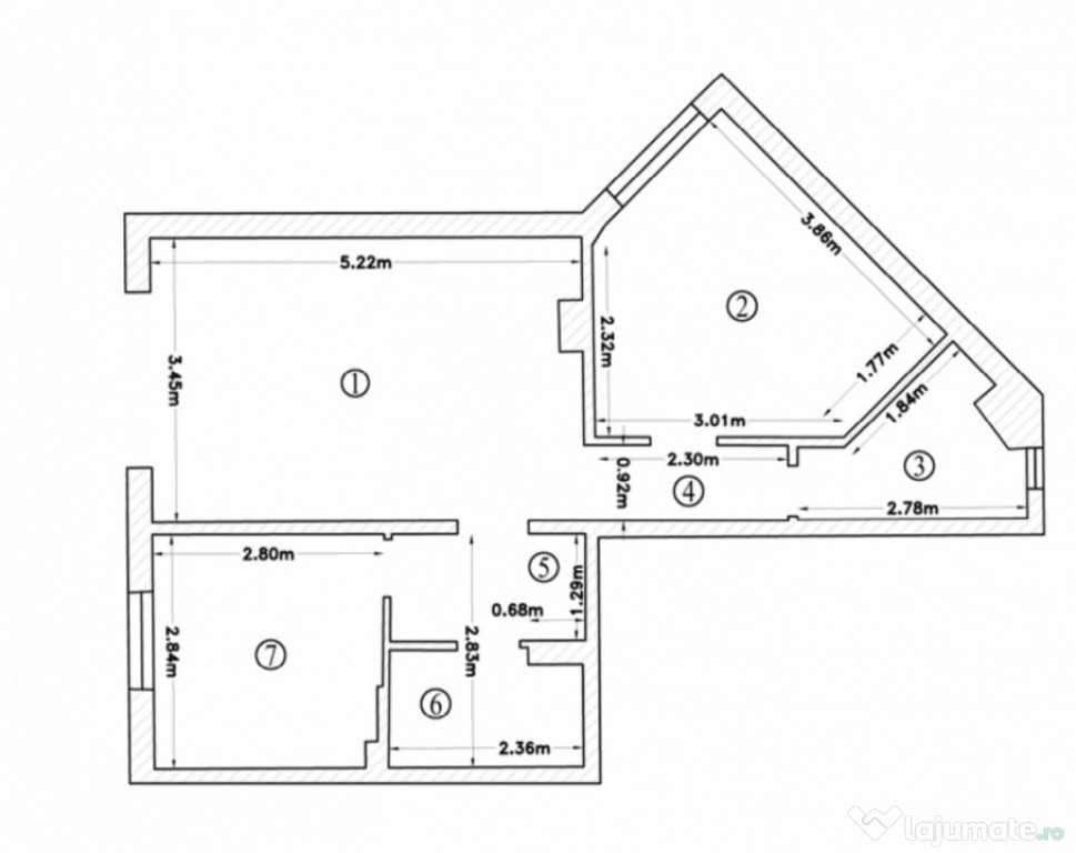
Suprafață utilă totală: 49 mp
3 încăperi distincte, luminoase, fiecare cu fereastră
2 grupuri sanitare complet noi
Zonă dedicată pentru amenajarea unei chicinete
Centrala proprie pe gaz – costuri reduse
Aer condiționat
Instalație electrică nouă
Instalație sanitară nouă
Gresie, uși și finisaje complet noi
Intrare amenajată cu spațiu verde
Scări + rampă pentru persoane cu dizabilități
Primul chiriaș după renovare
Disponibil imediat
Contract minim 12 luni (închiriere doar pe termen lung)
Ideal pentru
Cabinet medical, farmacie, laborator, birou notarial, sediu firmă, cabinet psihologic, salon de servicii, showroom mic, activități de consultanță sau alte servicii profesionale.
Id intern: P220486
An finalizare construcție: 1987
Stadiu construcţie: Finalizat
Comision cumpărător: 50%
Tip imobil: Bloc de apartamente
Publicat prin HomeZZ.ro, vezi anunțul complet aici.
Anuntul Spațiu Comercial Modern 3 camere Primul Chiriaș După Reno este adaugat de pe LaJumate.ro.
Anunturi similare
5.000 EUR
Hala de 1849 mp plus teren de inchiriat in zona Veterani Sib
Hala industriala de inchiriat in zona Veterani Sibiu, cu 1164 mp utili compartimentati in spatiu de p ...
230.000 EUR
Central - sp. com. - 100 mp/vitrina stradala/pretabil orice activitate
Agentia Contur Imobiliare Bacau ofera spre vanzare un spatiu comercial situat in centrul orasului pe ...
1.200 EUR
Central - sp. com - 100 mp /vitrina stradala/pretabil orice activitate
Agentia Contur Imobiliare Bacau ofera spre inchiriere un spatiu comercial situat in centrul orasului ...
1.600 EUR
Hala multifunctionala, Prejmer, Central
Comision chirias: 50% TVA, din contravaloarea unei chirii lunare, o singura data Va propunem spre ...
980.000 EUR
Hala multifunctionala de , Prejmer, Brasov
Comision cumparator: 2% TVA, din valoarea de tranzactionare Hala multiunctionala, Prejmer, Brasov ...
120.000 EUR
FILM! Oportunitate industriala, hala in localitatea Ghelinta
Comision cumparator: 0% ASCENDENT IMOBILIARE COVASNA este onorata sa va propuna spre vanzare oportu ...
540 EUR
Spațiu comercial stradal 44 mp de închiriat – Militar...
B-North Real Estate oferă spre închiriere spațiu comercial de 44 mp utili, situat stradal, în Militar ...
1.199 EUR
Spațiul Comercial pretabil pentru Cabinet Medical Birour...
Cauți spațiul perfect pentru afacerea ta? Aplum94 îți vine în ajutor cu un spațiu comercial de închir ...
269.000 EUR
Spatiu de productie 840mp,fotovoltaice, trifazic,birouri,728
Comision cumparator: 2.5% tva ASCENDENT IMOBILIARE TARGU MURES este onorata sa va propuna spre vanz ...
245.000 EUR
FILM! Resedinte montane,mobilate,echipate, jacuzzi,piscina,p
Comision cumparator:0% ASCENDENT IMOBILIARE este onorata sa va prezinte spre vanzare doua unitati a ...









