Spatiu comercial, 674.81 mp, zona Complex Studentesc
6.500 EUR
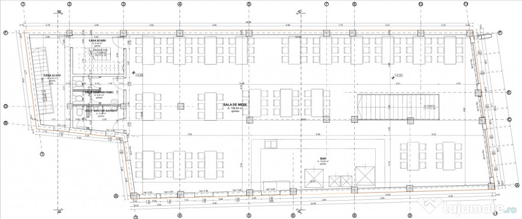
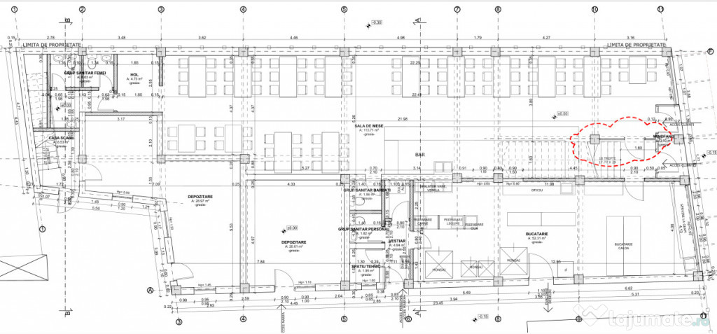
Blitz vă prezintă pentru închiriere un spațiu comercial generos, gândit și compartimentat pentru activități din domeniul HoReCa și evenimente de zi, cu funcționalitate clară și infrastructură completă.Imobilul este dispus pe 3 nivele (Parter + Etaj + Pod Inalt), având o suprafață utilă totală de 674.81 mp, oferind o separare logică a fluxurilor pentru clienți și personal.
Parterul este amenajat cu:
-zonă de bucătărie
-zonă dedicată clienților
-zonă de bar
-grup sanitar pentru clienți
-2 grupuri sanitare pentru angajați
-zonă de vestiar
Etajul dispune de:
-zonă de bar
-zonă de clienți
-grup sanitar pentru clienți
Podul Inalt, cu o suprafata utila de 221.94mp, ofera spatiu suplimentar flexibil, ce poate fi adaptat
Spațiul beneficiază de acces separat pentru marfă în curte, facilitând aprovizionarea fără a interfera cu zona de clienți. Confortul și controlul utilităților sunt asigurate prin centrală termică proprie și panou electric separat pentru fiecare nivel, oferind flexibilitate și eficiență în exploatare.
În plus, imobilul este dotat cu: sistem de supraveghere video, autorizație ISU, un avantaj major pentru demararea rapidă a activității.
Destinația spațiului este pretabilă pentru Pub, Fast Food sau Evenimente de zi, fiind pregătit pentru funcționare cu investiții minime suplimentare.
Condiții de închiriere:
-Perioadă contractuală minimă: 5 ani
-Garanție: 18.000 euro, cu posibilitatea achitării în tranșe, de comun acord
Dacă dorești să-ți deschizi o afacere cu un minim de investiție, nu ezita să ne contactezi și să programăm o vizionare.
Cod ofertă / ID BLITZ: P163158
Id intern: P163158
Stadiu construcţie: Finalizat
Tip imobil: Casă/Vilă
Publicat prin HomeZZ.ro, vezi anunțul complet aici.
Anuntul Spatiu comercial, 674.81 mp, zona Complex Studentesc este adaugat de pe LaJumate.ro.
Anunturi similare
500 EUR
Hala industriala echipata complet service, 90 mp, zona Schei
BLITZ vă propune spre închiriere o hală industrială echipată complet pentru service auto. Aceasta es ...
800 EUR
Spatiu comercial cartierul Strand
P18375 Smart Imobiliare propune spre de inchiriat un spațiu comercial situat în Sibiu, în zona Stran ...
1.700 EUR
Zona Margeanului sp 57 mp vitrina 5 m trafic intens
Imoibliar Expert Grup va propune spre inchiriere/vanzare spatiu comercial in suprafata de 57 mp situa ...
900 EUR
Spatiu birouri de inchiriat - Metou Dimitrie Leonida
Ofer spre inchiriere un spatiu comercial pretabil pentru birou/salon/depozitare, etc. Acesta se afla ...
2.200 EUR
Vila Bld. Marasti Nr 10 | Demisol+Parter+Curte 350Mp | Kisel
Cosmin Vasilache • Global Home Romania • Real Estate • Imobiliare Vilă multifuncțională | 6 camere | ...
49.900 EUR
SPATIU COMERCIAL DE VANZARE in Brosteni, jud. Suceava
Vă propunem spre vânzare un spațiu comercial bine poziționat, situat central, la stradă asfaltată, cu ...
600 EUR
Spatiu birou/comercial, modern, zona Cipariu
Bugra Imobiliare propune spre închiriere un spațiu profesional, situat într-o zonă ultracentrală, în ...
360.000 EUR
Spațiu Comercial + 2 Locuri de Parcare Chirias Activ – Dr
R.E.A. Imobiliare Spațiu comercial situat ultracentral, în zona Cișmigiu, la parter, cu acces direct ...
550 EUR
Spațiu birouri/comercial – zonă centrală
Blitz oferă spre închiriere spațiu pentru birouri sau activități comerciale, cu o suprafață de 50 mp, ...
550 EUR
Spațiu birouri/comercial – zonă centrală
Blitz oferă spre închiriere spațiu pentru birouri sau activități comerciale, cu o suprafață de 50 mp, ...






