Casa individuala Popesti-Leordeni | 5 Camere - 3 Bai
300.000 EUR
Descoperă un proiect rezidențial exclusivist, format din 3 locuințe individuale, situat într-o zonă accesibilă și în plină dezvoltare din Popești-Leordeni – la intersecția străzilor Popești Români și Miraslău.Cu acces facil către Șoseaua Olteniței, Primăria orașului, Poșta Popești-Leordeni, Mega Image și alte puncte de interes, acest ansamblu este ideal pentru familiile care caută un cămin modern, spațios și bine poziționat.
Detalii locuințe:
Regim de înălțime: Parter + Etaj (P+1)
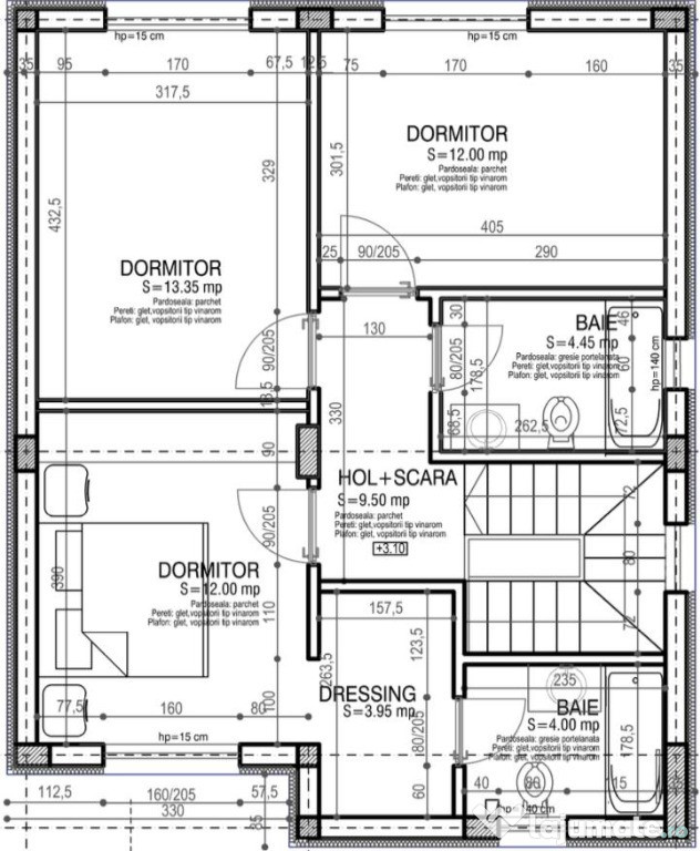
Suprafață utilă: 120 mp
Parter:
• Bucătărie închisă – 14,6 mp
• Living luminos – 20 mp
• Birou – 10,65 mp
• Baie – 3,65 mp
Etaj:
• Dormitor matrimonial – 12 mp cu dressing de 4 mp și baie proprie de 4 mp
• Dormitor 2 – 12 mp
• Dormitor 3 – 13,35 mp
• Baie principală – 4,45 mp
2 locuri de parcare pentru fiecare unitate
Terenuri individuale pentru fiecare casă
Suprafețe teren & prețuri:
Casa 1 – teren 270 mp → 325.000 EUR
Casa 2 – teren 242 mp → 300.000 EUR
Casa 3 – teren 293 mp → 350.000 EUR
Predare estimată: Octombrie 2026
Imaginile sunt cu titlu de prezentare, provenite dintr-un proiect similar, deja finalizat.
Avantaje cheie:
• Locație liniștită, ideală pentru familii
• Acces rapid către București prin Șos. Olteniței
• Aproape de magazine, școli, transport public și instituții publice
• Ansamblu mic – intimitate și comunitate restrânsă
• Investiție sigură pe termen lung
Contactează-ne pentru mai multe detalii și pentru a programa o vizionare la numarul 0787x706x269
Publicat prin HomeZZ.ro, vezi anunțul complet aici.
Anuntul Casa individuala Popesti-Leordeni | 5 Camere - 3 Bai este adaugat de pe LaJumate.ro.


















Anunturi similare
143 RON
Bloc lumini Volkswagen Jetta 2012
Bloc lumini Volkswagen Jetta 2012. Cod(uri): 1K0941431BD. Piesele comercializate sunt originale, prov ...
190 RON
Bloc lumini Land Rover Freelander 2 2008
Bloc lumini Land Rover Freelander 2 2008. Cod(uri): 6G9N13A024. Piesele comercializate sunt originale ...
143 RON
Bloc lumini Ford C-MAX 2011
Bloc lumini Ford C-MAX 2011. Cod(uri): 13A824AB. Piesele comercializate sunt originale, provenite din ...
119 RON
Bloc lumini Volkswagen Golf 7 2014
Bloc lumini Volkswagen Golf 7 2014. Cod(uri): 5G0941431AS. Piesele comercializate sunt originale, pro ...
143 RON
Bloc lumini BMW X1 2010
Bloc lumini BMW X1 2010. Cod(uri): 693279204. Piesele comercializate sunt originale, provenite din de ...
143 RON
Bloc lumini Volkswagen Golf 6 Plus
Bloc lumini Volkswagen Golf 6 Plus . Cod(uri): 3C8941431. Piesele comercializate sunt originale, prov ...
95 RON
Bloc lumini Skoda Fabia 2 2008
Bloc lumini Skoda Fabia 2 2008. Cod(uri): 1U0941531D. Piesele comercializate sunt originale, provenit ...
143 RON
Bloc lumini BMW X1 2010
Bloc lumini BMW X1 2010. Cod(uri): 693279403. Piesele comercializate sunt originale, provenite din de ...
190 RON
Bloc lumini Mercedes CLS 350 2012
Bloc lumini Mercedes CLS 350 2012. Cod(uri): A2129050751. Piesele comercializate sunt originale, prov ...
143 RON
Bloc lumini BMW Seria 1 F20
Bloc lumini BMW Seria 1 F20. Cod(uri): 926530504. Piesele comercializate sunt originale, provenite di ...