Teren, 537 m²
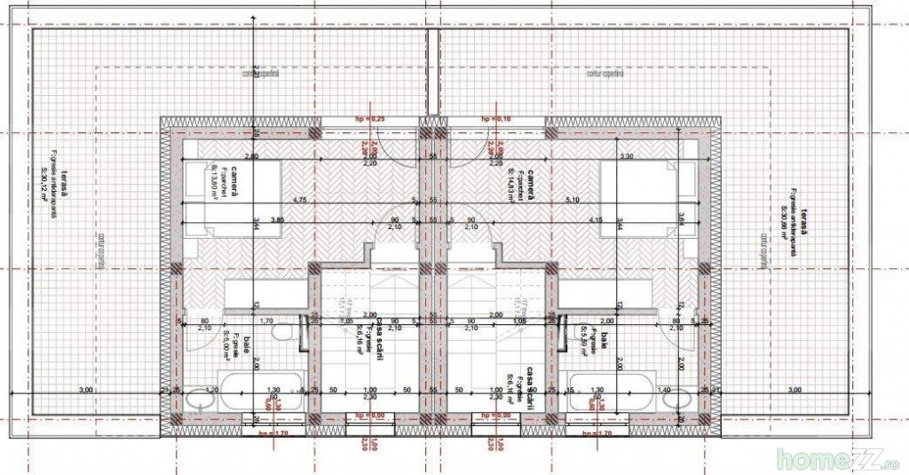
Blitz ofera spre vanzare teren intravilan cu suprafata de 537 mp, situat in cartierul Borhanci.S-a emis recent un certificat de urbanism favorabil pentru construire locuinta semicolectiva(cu doua unitati locative). Imobilul este incadrat, conform PUG Cluj-Napoca, in UTR Liu. P.O.T. maxim = 35%, C.U.T. maxim = 0,9,Hmax=12m, iar regimul este (S)+P+1+R.
Frontul la drum privat este de 15 ml. Utilitati precum apa, curent exista la front, canalizarea si gazul la o distanta de aproximativ 90 ml.
Imobilul se afla aproape de mijloacele de transport in comun si magazine.
Terenul are o priveliste superba asupra zonei .
Cod ofertă / ID BLITZ: P3483
Id intern: P3483
Anuntul Teren, 537 m² este adaugat de pe HomeZZ.ro.
Anunturi similare
100 EUR
Vand Teren Valu lui Traian
Vand teren Valul lui Traian partea dreapta spre Murfatlar , str VIEI drum asfaltat care duce spre cra ...
69.900 EUR
Teren 3,700mp intravilan Satu Nou Panciu
Vând teren intravilan cu suprafața de 3.700 mp. Toate utilitățile disponibile Curent electric tri ...
175.000 EUR
Oportunitate , 2000 mp , trafic auto , zona Dedeman Suceava
Teren intravilan cu suprafața de 2.000 mp, deschidere generoasă de 20 ml la stradă asfaltată, ideal p ...
60.000 EUR
Teren Extravilan 33,6 ari, Zona Frumoasa, Scheia.
Blitz imobiliare va propune un teren cu o suprafata de suprafață totală: 3.361 mp, cu deschidere de 1 ...
100 EUR
Teren intravilan JILAVA
Teren construibil, 1150mp, str Morii, Jilava cadastru, utilitati , delimitat clar, ...
65.000 EUR
Teren intravilan, suprafata 1214 mp, zona Moara
Blitz oferă spre vânzare un teren intravilan cu suprafața de 1214 mp, având o deschidere de 26 ml. - ...
2.150.000 EUR
Teren 44,728mp Focsani / Bulevardul Brailei
Teren intravilan – 44.728 mp! Poziție Excelentă pe Bulevardul Brăilei Descriere Generală Acest tere ...
425.000 EUR
Teren intravilan 4800 mp, front 20 ml, Zona Penny - Moara
Teren cu potențial major lângă Penny – Moara | Investiție într-o zonă care crește rapid Sunt zone ca ...
140.000 EUR
Teren intravilan 1663 mp, front 132 ml, Zona Saliste - Sf. I
Teren cu poziție strategică în Săliște – Sf. Ilie | Deschidere rară, potențial mare Unele proprietăț ...
77.000 EUR
Teren intravilan 1.000 mp – Sfântu Ilie, Suceava
Acesta este genul de teren care îți dă spațiu să respiri. Cu 1.000 mp, în Sfântu Ilie, aproape de Suc ...









