Teren padure Baneasa Jandarmeriei
500.000 EUR
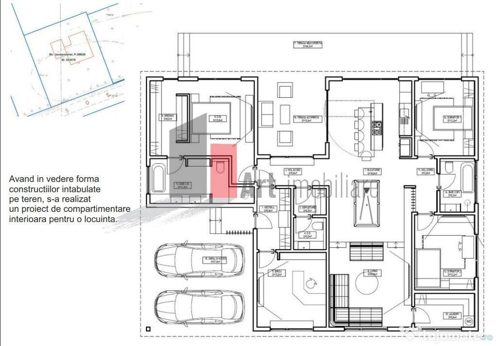
Teren de vânzare în Sector 1 – Locație exclusivistă, ideal pentru locuință! chiar in PadureAdresă: Str. Jandarmeriei, Sector 1, București
Suprafață: 1.250 mp – intravilan, construibil
Deschidere: 33 ml la strada Jandarmeriei
Construcții existente: Două anexe intabulate (194 mp) La acest moment pe teren mai exista fundatia lor.
Teren liber, fără vegetație
Caracteristici urbanistice:
POT: 15% CUT: 0.2 Regim de înălțime permis: P+1
Proiect de compartimentare interioară deja realizat pentru locuință!
Avantaje:
Zonă premium, liniștită, cu acces rapid către DN1, Băneasa și pădurea Băneasa
Ideal pentru construcția unei vile de lux sau reconfigurarea construcțiilor existente
Investiție solidă într-o zonă în plină dezvoltare
Publicat prin HomeZZ.ro, vezi anunțul complet aici.
Anuntul Teren padure Baneasa Jandarmeriei este adaugat de pe LaJumate.ro.




Anunturi similare
550.000 EUR
Once-in-a-Lifetime Opportunity - TEREN 507 mp - 550.000 euro
R.E.A. Imobiliare va prezinta o oportunitate unică de vanzare - pentru investiție: – teren de 507 mp ...
38 EUR
Vând teren în Bonțida, jud, Cluj
Vând teren intravilan în localitatea Bonțida, cu suprafața totală de 6.000 mp, situat la distanță scu ...
25.000 EUR
Teren intravilan, 3300 mp, Salcea
Blitz oferă spre vânzare un teren intravilan cu suprafața de 3300 mp, având o deschidere de 11 ml. - ...
588.160 EUR
Teren intravilan 1838 mp, D=18,54m, str.Manastirii nr.7D, ultracentral
Terenul propus spre vanzare este situat in Slatina, str. Manastirii, nr. 7D, jud. Olt, in imediata ve ...
464.000 EUR
Teren intravilan 18.200mp, cu PUZ si PUD, ideal constructi c
Comision cumparator: 0% ASCENDENT IMOBILIARE propune spre vanzare REPREZENTARE EXCLUSIVA, personali ...
464.000 EUR
Teren intravilan 18.200mp, cu PUZ si PUD, ideal constructi c
Comision cumparator: 0% ASCENDENT IMOBILIARE propune spre vanzare REPREZENTARE EXCLUSIVA, personali ...
179.000 EUR
Teren construcții, 1566 mp Strada A. Milan Tabacovici, A...
Teren excepțional de 1.566 mp, amplasat într-una dintre cele mai apreciate și liniștite zone din Arad ...
190.000 EUR
Teren Buftea cu iesire la lac
Art Imobiliare va ofera spre vanzare un teren intravilan constructii cu deschidere la lacul Colentina ...
500.000 EUR
Teren padure Baneasa Jandarmeriei
Teren de vânzare în Sector 1 – Locație exclusivistă, ideal pentru locuință! chiar in Padure Adresă: ...
100.000 EUR
Teren 10,000mp Bacau / Strada Alexandru Safran
Se vinde aceasta suprafata de teren de 1ha, situata in spatele RAR Bacau, cu acces din strada Alexand ...