Zona Linistita Acces Facil
154.192 EUR
Acest imobil face parte din dezvoltarea imobiliara HOMECLASS Residence, situat in zona Noua, Brasov.Un proiect rezidential nou, gandit pentru cei care isi doresc un stil de viata echilibrat, intr-un cadru natural, dar cu acces facil catre oras. Ansamblul este dezvoltat pe regim de inaltime P+3E+Etaj Retras, cu un total de 28 de apartamente cu 1, 2 si 3 camere, fiecare proiectat cu atentie la detalii, confort si functionalitate.
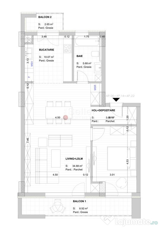
COMPARTIMENTARE:
- Zona de zi, care are o suprafata generoasa, cu deschidere la terasa;
- Bucataria, de tip open space, cu deschidere la balcon;
- Dormitorul, dispune de acces la terasa comuna cu zona de living;
- Baia, aceasta dispune de aerisire naturala.
DOTARI:
- centrala pe bloc;
- tamplarie PVC, cu geam termopan;
- usa metalica;
- izolatie cu vata bazaltica de 10 cm;
- incalzire in pardoseala.
FACILITATI DE PARCARE:
- 32 de locuri de parcare acoperite, care pot fi achizitionate individual la pretul de 11.000 euro + T.V.A.;
- 6 locuri de parcare supraterane, fiecare la pretul de 8.000 euro + T.V.A.;
- 6 statii de incarcare auto.
INTEGRARE MEDIU SI PIESAGISTICA:
HomeClass Residence este conceput pentru a se integra armonios în peisajul zonei Noua, una dintre cele mai verzi și liniștite zone ale Brasovului. Spatiile verzi din jurul imobilului si locul de joaca pentru copii, vor fi amenajate cu grija, fiind ideale pentru momentele de destindere.
ACCES PROPRIETATE CU BARIERA:
Sistemul ofera securitate sporita, reducerea traficului neautorizat si controlul eficient al accesului pentru rezidenți si vizitatori, contribuind la cresterea sigurantei si confortului.
CALITATE SI SUSTENABILITATE:
Proiectul respecta cele mai inalte standarde de constructie și eficienta energetica, fiind pregatit pentru dotari moderne precum incalzire in pardoseala si infrastructura pentru sistemul de aer conditionat. Fiecare apartament este livrat la stadiul de finisat, cu posibilitatea de a-l personaliza în functie de preferintele cumparatorului.
LOCATIE STRATEGICA:
Proiectul rezidential ofera acces rapid catre centrul orasului, dar si catre zonele de agrement din imprejurimi, cum ar fi Lacul Noua, Gradina Zoologica sau traseele montane din jurul Brasovului. Este o alegere ideala pentru familii, tineri profesionisti sau investitori care cauta un echilibru intre natura si dinamica urbana.
TERMEN FINALIZARE: Octombrie 2026
PARTENER EXCLUSIV:
Complexul HomeClass Residence este promovat in regim exclusiv – The Seller and Partners, pentru a va asigura o experienta imobiliara unica, in procesul de tranzactionare.
Beneficiati de comision 0%.
Confort: Lux
Tip imobil: Bloc de apartamente
Număr Băi: 1
Posibilitate parcare: Nu
Publicat prin HomeZZ.ro, vezi anunțul complet aici.
Anuntul Zona Linistita Acces Facil este adaugat de pe LaJumate.ro.


















Anunturi similare
127.000 EUR
Apartament 2 camere, decomandat - zona Tractorul
ID intern: 23534 Colosseum Invest va propune spre vanzare apartament cu 2 camere, decomandat, confor ...
450 EUR
Apartament 2 camere de închiriat – Sector 3, zona Dristor
Apartament 2 camere de închiriat – mobilat și utilat complet, zona IOR – ParkLake Vă propunem spre î ...
400 EUR
Inchiriez apartament 3camere zona Piata Hala Traian
Direct proprietar !!Apartament 3 camere de închiriat zona Unirii (piața Hala Traian) ! Pretabil pentr ...
3.500 RON
Apartament 3 camere cat friendly (cu plase pisici)
Direct proprietar - Inchiriez un apartament de 3 camere situat in Strada Garleni (capat 41 / Drumul T ...
150.000 EUR
Apartament tip studio, cu garaj, Urban, Tractorul, Brasov
Comision cumparator: 2% tva ASCENDENT IMOBILIARE va propune spre vanzare un apartament tip studio, ...
52.000 EUR
Apartament 2 camere MICRO 19
Proprietar vând apartament cu 2 camere, situat în mun. Galaţi, Micro 19, lângă Spitalul Județean, cu ...
480 EUR
Inchiriez apartament Girocului
APOSTU ESTATE vă propune spre închiriere un apartament spațios și elegant, cu 3 camere, situat într-o ...
1.200 EUR
Închiriere sediu firmă / birouri premium – Apartament 2 camere, 92 mp,
???? Ofer spre închiriere apartament de 2 camere, ideal pentru birouri premium, disponibil imediat, S ...
92.000 EUR
Apartament doua camere, in verde areal, zona Astra, Brasov
Comision cumparator: 2% TVA. ASCENDENT IMOBILIARE va propune spre vanzare un apartament cochet, cu ...
650 EUR
Apartament de închiriat, 3 camere, Complet Mobilat și Utilat, Golden R
Apartament 3 camere, Golden Residence Otopeni, Complet Mobilat și Utilat Parcare inclusă în prețul c ...