Zona Linistita Acces Facil
174.524 EUR
Acest imobil face parte din dezvoltarea imobiliara HOMECLASS Residence, situat in zona Noua, Brasov.Un proiect rezidential nou, gandit pentru cei care isi doresc un stil de viata echilibrat, intr-un cadru natural, dar cu acces facil catre oras. Ansamblul este dezvoltat pe regim de inaltime P+3E+Etaj Retras, cu un total de 28 de apartamente cu 1, 2 si 3 camere, fiecare proiectat cu atentie la detalii, confort si functionalitate.
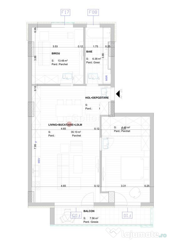
COMPARTIMENTARE:
- Zona de zi, care are o suprafata generoasa;
- Bucataria, de tip open space, aceasta dispunand de zona de luat masa si acces la terasa;
- Dormitorul, detine acces la terasa comuna cu zona de living;
- Camera, aceasta beneficiaza de suprafete vitrate mari;
- Baia, dispune de aerisire naturala.
DOTARI:
- centrala pe bloc;
- tamplarie PVC, cu geam termopan;
- usa metalica;
- izolatie cu vata bazaltica de 10 cm;
- incalzire in pardoseala.
FACILITATI DE PARCARE:
- 32 de locuri de parcare acoperite, care pot fi achizitionate individual la pretul de 11.000 euro + T.V.A.;
- 6 locuri de parcare supraterane, fiecare la pretul de 8.000 euro + T.V.A.;
- 6 statii de incarcare auto.
INTEGRARE MEDIU SI PIESAGISTICA:
HomeClass Residence este conceput pentru a se integra armonios în peisajul zonei Noua, una dintre cele mai verzi și liniștite zone ale Brasovului. Spatiile verzi din jurul imobilului si locul de joaca pentru copii, vor fi amenajate cu grija, fiind ideale pentru momentele de destindere.
ACCES PROPRIETATE CU BARIERA:
Sistemul ofera securitate sporita, reducerea traficului neautorizat si controlul eficient al accesului pentru rezidenți si vizitatori, contribuind la cresterea sigurantei si confortului.
CALITATE SI SUSTENABILITATE:
Proiectul respecta cele mai inalte standarde de constructie și eficienta energetica, fiind pregatit pentru dotari moderne precum incalzire in pardoseala si infrastructura pentru sistemul de aer conditionat. Fiecare apartament este livrat la stadiul de finisat, cu posibilitatea de a-l personaliza în functie de preferintele cumparatorului.
LOCATIE STRATEGICA:
Proiectul rezidential ofera acces rapid catre centrul orasului, dar si catre zonele de agrement din imprejurimi, cum ar fi Lacul Noua, Gradina Zoologica sau traseele montane din jurul Brasovului. Este o alegere ideala pentru familii, tineri profesionisti sau investitori care cauta un echilibru intre natura si dinamica urbana.
TERMEN FINALIZARE: Octombrie 2026
PARTENER EXCLUSIV:
Complexul HomeClass Residence este promovat in regim exclusiv – The Seller and Partners, pentru a va asigura o experienta imobiliara unica, in procesul de tranzactionare.
Beneficiati de comision 0%.
Confort: Lux
Tip imobil: Bloc de apartamente
Număr Băi: 1
Posibilitate parcare: Nu
Publicat prin HomeZZ.ro, vezi anunțul complet aici.
Anuntul Zona Linistita Acces Facil este adaugat de pe LaJumate.ro.


















Anunturi similare
952 RON
Fuzeta cu amortizor stanga fata Audi A4 B9 2.0 Motorina 2017
Fuzeta cu amortizor stanga fata Audi A4 B9 2.0 Motorina 2017. Piesele comercializate sunt originale, ...
571 RON
Spira volan + manete Dacia Duster 2019
Spira volan + manete Dacia Duster 2019. Cod(uri): 255550638R, 255678207R. Piesele comercializate sun ...
476 RON
Spira volan + manete Dacia Logan Mcv 2013
Spira volan + manete Dacia Logan Mcv 2013. Cod(uri): 479454698R, 681726046R. Piesele comercializate ...
762 RON
Fuzeta cu amortizor dreapta fata BMW F30 2.0 Motorina 2013
Fuzeta cu amortizor dreapta fata BMW F30 2.0 (cod motor: N47) Motorina 2013. Piesele comercializate s ...
286 RON
Airbag pasager Nissan Qashqai 2012
Airbag pasager Nissan Qashqai 2012. Cod(uri): 98515JD01B. Piesele comercializate sunt originale, prov ...
286 RON
Airbag volan Dacia Duster 2013
Airbag volan Dacia Duster 2013. Cod(uri): 985107995R. Piesele comercializate sunt originale, provenit ...
476 RON
Airbag volan Audi A4 B8 2012
Airbag volan Audi A4 B8 2012. Cod(uri): 8K08802016PS. Piesele comercializate sunt originale, provenit ...
500 RON
Geanta Michael Kors
Geanta Michael Kors, culoare bleumarin ...
60 RON
Geaca marimea 104 neagra
vand geaca piele ecologica marimea 104 in stare foarte bună.plata ramburs ...
200 RON
Geanta DKNY ( Donna Karan)
Geanta DKNY, culoare negru, noua fara eticheta ...