Vila cu piscina - teren generos și potențial multifuncțional
700.000 EUR
Proprietate deosebită situată pe Strada Vasile Alecsandri nr. 11, într-o zonă centrală și bine cotată a municipiului Câmpina, cu acces facil către principalele puncte de interes ale orașului. Imobilul se remarcă prin suprafața mare de teren, compartimentarea eficientă și posibilitatea de utilizare atât rezidențială, cât și comercială.Date generale
• Suprafață teren: aproximativ 2.150 mp
• Construcție principală: demisol + parter + etaj
• Suprafață construită parter: 269,83 mp
• Suprafață utilă parter: 204,85 mp
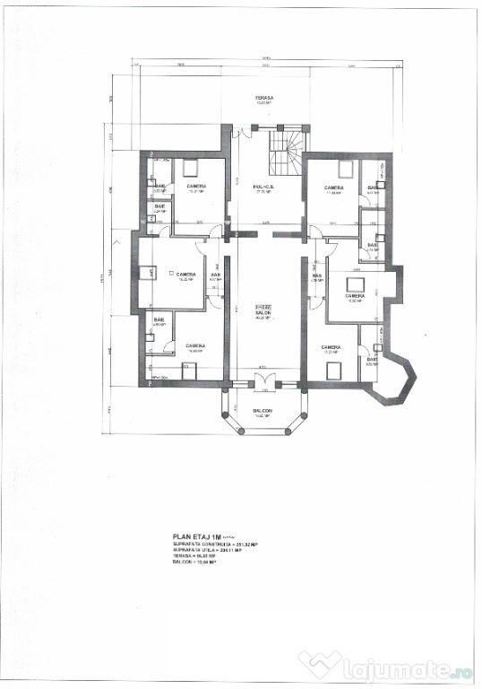
• Suprafață construită etaj: 251,52 mp
• Suprafață utilă etaj: 204,11 mp
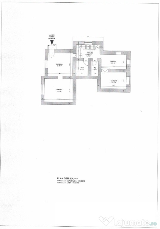
• Suprafață construită demisol: 144,51 mp
• Suprafață utilă demisol: 92,64 mp
• Anexe:
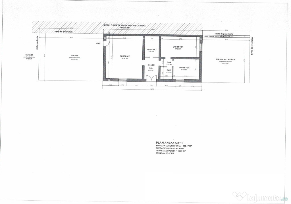
o Anexa C2 – suprafață construită 102,17 mp, suprafață utilă 81,95 mp
o Cameră tehnică piscină și centrală termică
• Piscină exterioară: suprafață utilă aproximativ 69 mp
• Terase, balcon și verandă cu suprafețe generoase
Compartimentare
Construcția principală este bine structurată, cu camere de mari dimensiuni, saloane generoase și circulații clare între zonele de zi și de noapte.
Parterul dispune de un salon spațios, bucătărie separată, mai multe camere ce pot fi utilizate ca dormitoare sau birouri, grupuri sanitare și zone de socializare, cu acces direct către exterior.
Etajul oferă un al doilea salon, dormitoare luminoase cu băi proprii, precum și acces către terasă și balcon.
Demisolul include camere bine ventilate, grup sanitar și spații cu multiple posibilități de utilizare, precum depozitare, birouri, spații tehnice sau locuire auxiliară.
Anexa C2 este o construcție separată, cu camere proprii, baie, hol și terase, potrivită pentru locuință independentă, personal auxiliar sau activitate distinctă.
Curte și exterior
Curtea este amplă, cu deschidere generoasă, oferind intimitate și posibilitatea de amenajare a unor zone de relaxare, grădină sau evenimente. Piscina exterioară completează caracterul premium al proprietății.
Localizare
Imobilul este amplasat într-o zonă centrală a orașului Câmpina, în apropiere de unități medicale, școli, grădinițe, magazine, restaurante și transport public, cu acces rapid către principalele artere urbane.
Destinații posibile
Proprietatea este potrivită pentru:
• reședință de familie cu suprafețe generoase;
• sediu de firmă, birouri sau clinică medicală;
• centru educațional sau de îngrijire;
• investiție imobiliară cu funcțiune mixtă.
Număr Băi: mai mult de 3
Posibilitate parcare: Da
Curent
Apă
Gaz
Încălzire
Publicat prin HomeZZ.ro, vezi anunțul complet aici.
Anuntul Vila cu piscina - teren generos și potențial multifuncțional este adaugat de pe LaJumate.ro.
Anunturi similare
129.999 EUR
Casa Individuala Parter de - Pantelimon - COMISION 0%
Oferta comision 0. Oferta Exclusiva. Confortul tau e pe primul loc! ,,Unde mi-as dori sa locuiesc?q ...
110.000 EUR
2 Camere + Parcare | Bloc Nou | Zona Militari
REA Imobiliare va ofera spre vanzare un apartament cu două camere, decomandat, situat in zona Militar ...
90.000 EUR
STUDIO || Strada Solstitiului | 45mp || Mobilat/Utilat
MUTARE IMEDIATA Studio 45mp, mobilat/utilat, totul nou 15-18 minute pana la statia metroului Bercen ...
73.900 EUR
Apartament Nord - Str. Carpati - Et. 1 - Comision 0%!
Situat într-una dintre cele mai apreciate zone din Nord, pe strada Carpați, acest apartament cu 2 cam ...
159.000 EUR
Domnesti, Putul Olteni, str Fortului, Casa Individuala, Mobi
Noua pe piata ! Comision 0 % pentru cumparator. Vanzare persoana fizica, nu se plateste TVA. Casa com ...
500 EUR
Apartament 3 camere, 80 mp, zona Girocului
Blitz va propune pentru închiriere apartament cu 3 camere, situat la etajul 1, decomandat, cu 2 băi, ...
364.000 EUR
Casa rafinata,incantare peisagistica,garaj,securizare,Corunc
Comision cumparator:0% Ascendent Imobiliare Targu Mures este onorata sa va propuna spre vanzare o i ...
364.000 EUR
Casa rafinata,incantare peisagistica,garaj,securizare,Corunc
Comision cumparator:0% Ascendent Imobiliare Targu Mures este onorata sa va propuna spre vanzare o i ...
800 EUR
Apartament 4 camere, 130 mp, zona Central
Blitz va prezinta pentru inchiriere un apartament cu caracter, situat intr-o cladire construita in an ...
159.000 EUR
Clinceni, Putul Olteni, str Fortului, Casa Individuala, Mobi
Noua pe piata ! Comision 0 % pentru cumparator. Vanzare persoana fizica, nu se plateste TVA. Casa com ...





